Eladó új építésű lakás Budapest XIII. kerület
| Kedvencbe | Megosztás | Árfigyelő |
| Kedvezményes lakáshitel ajánlatok | ||
| 115 900 000 HUF | ||
Ingatlan adatai
- Eladó vagy kiadó:Eladó
- Település:Budapest XIII. kerület
- Kategória:Lakás
- Alkategória:Tégla
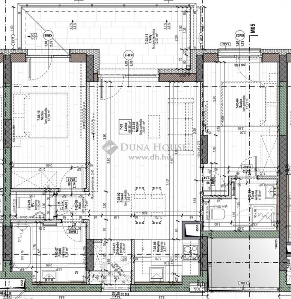
- Alapterület:72 m2
- Csere is:Nem
- Hirdető:Cég
- Élő videón megtekinthető:Nem
- Szobaszám:3
- Állapot:Új építésű
- Hány szintes az ingatlan:Földszintes
- Komfortosság:nincs megadva
- Hányadik emeleti:7
- Lift:Van
- Parkolási lehetőség:nincs megadva
- Fűtés:Egyéb
- Bútorozottság:nincs megadva
- Fényviszony:nincs megadva
- Tájolás:DK
- Kilátás:nincs megadva
- Internet:nincs megadva
- Akadálymentesített:nincs megadva
- Energiatanúsítvány:nincs megadva
- Villany:Van
- Víz:Van
- Gáz:nincs megadva
- Csatorna:Van
- Üzenetküldés
- Hívás

Kovács-Őrsi Diána
Mondd meg a hirdetőnek, hogy a megveszLAK-on találtad a hirdetést.
Referencia szám: PR088803/LK/21721

Hitel ajánlat
Ingatlan hirdetés leírása
Eladó lakás, Budapest 13. ker.
Új építésű energiatakarékos otthonok, a Rendőrpalota szomszédságában, 13. kerületben Angyalföldön! a XIII. kerület egyik legdinamikusabban fejlődő részén épül, az a 9 emeletes társasház, mely nem csupán külsőleg egy modern lakóház, de összetételében is minőségi anyagfelhasználás jellemzi. Költséghatékony fenntarthatóságát, modern gépészeti megoldások biztosítják! Az emeleten elhelyezkedő teraszok, jelentősen csökkentik a homlokzat felmelegedését a forró nyári időszakban. a hőmegtartást korszerű nyílászárók, beépített rejtett redőnyök és 20 cm vastag fal szigetelés biztosítja. Az épületben modern energiatakarékos világítási és elektromos rendszerek, valamint szelektív hulladékkezelés kerül kialakításra. a költséghatékony hőszivattyús rendszer, mennyezet hűtés -fűtéssel biztosítja az évszaknak megfelelő ideális hőmérsékletet. a megújuló energiák felhasználása mellett kulcsfontosságú az épületbe tervezett gépészeti és elektromos rendszerek alacsony energiafelhasználása. a lakások méretei 30m2-140m2-ig terjednek. Az emeleteken a Keleti, Déli és Dél-Nyugati fekvés miatt az ingatlanok benapozottsága, tájolása optimális, északi fekvésű lakás nincs az épületben. a belső udvarban kialakított zöldfelületek, illetve kert teszi még kellemesebbé az ott lakók életét. a környéken minden megtalálható, (iskola, óvoda, kórház, orvosi rendelő, gyógyszertár, bank, kormányablak, kávézó, Tesco, Aldi, Spar, virágüzlet, edzőterem), közlekedés szempontjából is kiváló, mivel a metró, buszok (távolsági is! ), 1-Es villamos csupán néhány perc távolságra vannak. Új építésű energiatakarékos otthonok, a Rendőrpalota szomszédságában, 13. kerületben Angyalföldön! a XIII. kerület egyik legdinamikusabban fejlődő részén épül, az a 9 emeletes társasház, mely nem csupán külsőleg egy modern lakóház, de összetételében is minőségi anyagfelhasználás jellemzi. Költséghatékony fenntarthatóságát, modern gépészeti megoldások biztosítják! Az emeleten elhelyezkedő teraszok, jelentősen csökkentik a homlokzat felmelegedését a forró nyári időszakban. a hőmegtartást korszerű nyílászárók, beépített rejtett redőnyök és 20 cm vastag fal szigetelés biztosítja. Az épületben modern energiatakarékos világítási és elektromos rendszerek, valamint szelektív hulladékkezelés kerül kialakításra. a költséghatékony hőszivattyús rendszer, mennyezet hűtés -fűtéssel biztosítja az évszaknak megfelelő ideális hőmérsékletet. a megújuló energiák felhasználása mellett kulcsfontosságú az épületbe tervezett gépészeti és elektromos rendszerek alacsony energiafelhasználása. a lakások méretei 30m2-140m2-ig terjednek. Az emeleteken a Keleti, Déli és Dél-Nyugati fekvés miatt az ingatlanok benapozottsága, tájolása optimális, északi fekvésű lakás nincs az épületben. a belső udvarban kialakított zöldfelületek, illetve kert teszi még kellemesebbé az ott lakók életét. a környéken minden megtalálható, (iskola, óvoda, kórház, orvosi rendelő, gyógyszertár, bank, kormányablak, kávézó, Tesco, Aldi, Spar, virágüzlet, edzőterem), közlekedés szempontjából is kiváló, mivel a metró, buszok (távolsági is! ), 1-Es villamos csupán néhány perc távolságra vannak. Tökéletes lokáció, minőségi otthonok Angyalföldön! a XIII. kerület egyik legdinamikusan fejlődő részében épül az a 9 emeletes új társasház, mely nem csupán külsőleg egy modern lakóház, de összetételében is minőségi anyagfelhasználás jellemzi. Költséghatékony fenntarthatóságát, modern gépészeti megoldások biztosítják! Az emeleten elhelyezkedő teraszok, jelentősen csökkentik a homlokzat felmelegedését a forró nyári időszakban. a hőmegtartást korszerű nyílászárók, beépített rejtett redőnyök és 20 cm vastag fal szigetelés biztosítja. Az épületben modern energiatakarékos világítási és elektromos rendszerek, valamint szelektív hulladékkezelés kerül kialakításra. a költséghatékony hőszivattyús rendszer, mennyezet hűtés -fűtéssel biztosítja az évszaknak megfelelő ideális hőmérsékletet. a megújuló energiák felhasználása mellett kulcsfontosságú az épületbe tervezett gépészeti és elektromos rendszerek alacsony energiafelhasználása. a lakások méretei 30m2-140m2-ig terjednek. Az emeleteken a Keleti, Déli és Dél-Nyugati fekvés miatt az ingatlanok benapozottsága, tájolása optimális, északi fekvésű lakás nincs az épületben. a belső udvarban kialakított zöldfelületek, illetve kert teszi még kellemesebbé az ott lakók életét. a környéken minden megtalálható, (iskola, óvoda, kórház, orvosi rendelő, gyógyszertár, bank, kormányablak, kávézó, Tesco, Aldi, Spar, virágüzlet, edzőterem), közlekedés szempontjából is kiváló, mivel a metró, buszok (távolsági is! ), 1-Es villamos csupán néhány perc távolságra vannak.Referencia szám: pr088803/lk/21721 Hitel.hu - Hasonlítsa össze a bankok lakáshitel ajánlatait

