- >>
- eladó ingatlanok
- >>
- eladó lakás
- >>
- eladó lakás Budapest XV. kerület
- >>
Eladó újszerű állapotú lakás - Budapest XV. kerület
| | |||
| Kedvencnek jelölöm | Elküldöm emailben | Megosztás | Szavazás |
| Kedvezményes lakáshitel ajánlatok | |||
| 102 900 000 HUF | |||
Ingatlan adatai
- Eladó vagy kiadó:Eladó
- Település:Budapest XV. kerület
- Kategória:Lakás
- Alkategória:Tégla
- Alapterület:78 m2
- Csere is:Nem
- Hirdető:Cég
- Élő videón megtekinthető:Nem
- Szobaszám:4
- Állapot:Újszerű, kitűnő
- Hány szintes az ingatlan:nincs megadva
- Komfortosság:Összkomfortos
- Hányadik emeleti:1
- Erkély:Van
- Lift:Nincs
- Parkolási lehetőség:Udvaron
- Fűtés:nincs megadva
- Bútorozottság:nincs megadva
- Fényviszony:nincs megadva
- Tájolás:nincs megadva
- Kilátás:Kertre néző
- Internet:nincs megadva
- Akadálymentesített:nincs megadva
- Energiatanúsítvány:nincs megadva
- Villany:nincs megadva
- Víz:nincs megadva
- Gáz:nincs megadva
- Csatorna:nincs megadva
- Üzenetküldés
- Hívás


Hitel ajánlat
Ingatlan hirdetés leírása
Eladó Tégla lakás, Budapest 15. kerület, Rákospalota, 78nm, 10...
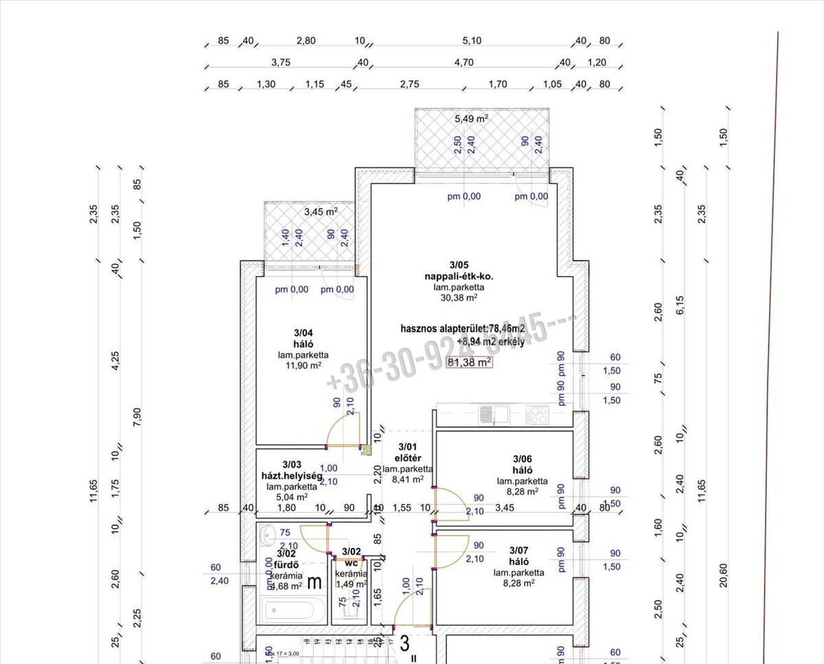
XV. Rákospalota Kertvárosi részén épülő 4 lakásos társasházban eladó egy 1. emeleti, 78 nm-es, nappali + 3 szobás, nyugati fekvésű, két erkélyes lakás.A lakáshoz opcionálisan vásárolható felszíni beálló (3 mFt) és egy 4 nm-es tároló (2. 5 MFt).
Elosztása:
előtér 8, 41 nm
WC 1, 49 nm
fürdő 4, 68 nm
házt. H. 5, 04 Nm
konyha-étkező-nappali 30, 38 nm
szoba 11, 90 nm
szoba 8, 28 nm
szoba 8, 28 nm
erkély 5, 49 nm
erkély 3, 45 nm
Műszaki tartalom röviden:
*teherhordó fal pth 30 n-f tégla
*válaszfal pth 10 n-f tégla
*homlokzati szigetelés 10 cm grafitos
*betonfödém
*3 rétegű külső nyílászárók
*ablakokon motoros redőnyök (szúnyogháló nélkül)
*hőszivattyús fűtés-hűtés rendszer, padlófűtéssel, mennyezeti hűtés-fűtés
*H-tarifás villanyóra
*burkolatok, beltéri ajtók, szaniterek a műszaki leírásban meghatározott értékben választhatók
*gépkocsi bejáró és gyalogos járdák viacolor burkolattal térkövezve
*céges építkezés
*átadás 2026. II. Név
Hiteligény esetén az ügyintézést szakszerűen, gyorsan és díjmentesen biztosítjuk ügyfeleink számára, így a legkedvezőbb megoldást tudjuk kínálni az ingatlan megvásárlásához.
Várom megtisztelő érdeklődését, akár hétvégén is. Hitel.hu - Hasonlítsa össze a bankok lakáshitel ajánlatait

