Eladó jó állapotú lakás - Nyíregyháza
- INGYENES HIRDETÉS FELADÁS
Ingatlan adatai
- Eladó vagy kiadó:Eladó
- Település:Nyíregyháza
- Kategória:Lakás
- Alkategória:Tégla
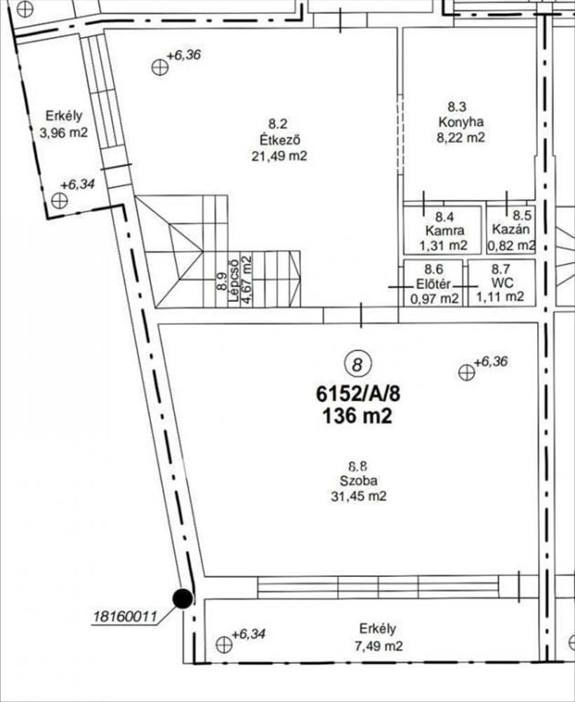
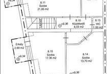
- Alapterület:140 m2
- Csere is:Nem
- Hirdető:Cég
- Élő videón megtekinthető:Nem
- Szobaszám:2 + 2 fél
- Állapot:Jó állapotú
- Hány szintes az ingatlan:Földszintes
- Komfortosság:nincs megadva
- Hányadik emeleti:1
- Erkély:nincs megadva
- Lift:Nincs
- Parkolási lehetőség:Teremgarázsban
- Fűtés:Gáz (cirko)
- Bútorozottság:nincs megadva
- Fényviszony:Napfényes
- Tájolás:nincs megadva
- Kilátás:nincs megadva
- Internet:nincs megadva
- Klíma:nincs megadva
- Akadálymentesített:nincs megadva
- Energiatanúsítvány:A
- Villany:Van
- Víz:Van
- Gáz:nincs megadva
- Csatorna:Van
- Közös költség:15 000 Ft
- Kapcsolatfelvétel

Takács Jánosné
+36-(20)-510-2695
Mondd meg a hirdetőnek, hogy a megveszLAK-on találtad a hirdetést.
Referencia szám: M319186
Hitel ajánlatok
Ingatlan hirdetés leírása
Eladó Lakás, Nyíregyháza
Tágas, belvárosi 140nm -es lakás, nagy erkéllyel és garázzsal. Azonnal költözhető!
Eladó Nyíregyháza belvárosának egyik kedvelt részén egy 140nm -es, 2+2 szobás, tégla építésű lakás, amely nagyméretű erkéllyel és önálló garázzsal rendelkezik.
A tágas elrendezés ideális nagyobb családoknak, otthoni munkavégzéshez vagy akár bérbeadásra is.
Dél-nyugati tájolás. Az ingatlan az első emeleten helyezkedik el, viszont rendelkezik + egy belső szinttel, így az belül 2 emeletes. a garázs külön megvásárolható az ingatlanhoz, ami az épület aljánál található. Az utca fronti erkély, tökéletes rálátást biztosít a Szabadtéri Színpadra. Sosem látott gyors ügyintézés, pénzügyi tanácsadás, sorban állás nélkül. CSOK Plusz, Babaváró, segítünk mindenben! Fordulj hozzám bizalommal!
Referencia szám: m319186 FIX 3% lakáshitelre megvehető
Tetszett ez az eladó Nyíregyházai jó állapotú 2 egész és 2 fél szobás tégla lakás? Hívd fel a hirdetőt most, és tudj meg mindent erről az eladó tégla lakásról! Ha gondolod nézelődj tovább az eladó lakás Nyíregyháza oldal hirdetései között. Ennek az eladó lakásnak az ára 64900000 Ft és mivel az alapterülete 140 négyzetméter, ezért az átlagos négyzetméterára 463571 HUF/m2.
Az eladó lakások menüpontban további hirdetések között is böngészhetsz. Ha van kedved, akkor böngészhetsz a Takács Jánosné összes hirdetése között, vagy akár a/az OTPip Nyíregyháza Dózsa György út 32-34 - OTP Ingatlanpont Iroda összes hirdetése között is.

