Eladó új építésű lakás - Nyíregyháza
- INGYENES HIRDETÉS FELADÁS
Ingatlan adatai
- Eladó vagy kiadó:Eladó
- Település:Nyíregyháza
- Kategória:Lakás
- Alkategória:Tégla
- Alapterület:49 m2
- Csere is:Nem
- Hirdető:Cég
- Élő videón megtekinthető:Nem
- Szobaszám:2
- Állapot:Új építésű
- Hány szintes az ingatlan:nincs megadva
- Komfortosság:nincs megadva
- Hányadik emeleti:nincs megadva
- Erkély:Van
- Lift:nincs megadva
- Parkolási lehetőség:nincs megadva
- Fűtés:Gáz (cirko)
- Bútorozottság:nincs megadva
- Fényviszony:nincs megadva
- Tájolás:K
- Kilátás:Utcai
- Internet:nincs megadva
- Klíma:nincs megadva
- Akadálymentesített:nincs megadva
- Energiatanúsítvány:nincs megadva
- Villany:Van
- Víz:Van
- Gáz:Van
- Csatorna:Van
- Kapcsolatfelvétel

Ugrai Roland
+36-(70)-716-8651
Mondd meg a hirdetőnek, hogy a megveszLAK-on találtad a hirdetést.
Hitel ajánlatok
Ingatlan hirdetés leírása
Új építésű lakások a Hatzel tér közelében – modern otthonok Ny...
Új építésű lakások a Hatzel tér közelében – modern otthonok Nyíregyháza belvárosában
Eladó új építésű, 1 szobás, amerikai konyhás lakások Nyíregyháza belvárosában, a Hatzel tér közvetlen közelében! a 10 lakásos társasház csendes utcában épül, minden lakáshoz erkély tartozik, amely tökéletes a pihenésre és a friss levegő élvezetére.
A társasház modern, minőségi anyagokból készül:
- 30 cm-es homlokzati szigetelés a kiváló hőszigetelésért
- 3 rétegű műanyag nyílászárók a hő- és hangszigetelésért
- Padlófűtés minden lakásban a komfortos hőérzetért
- Klíma a nyári hónapokra
A társasházhoz garázs és udvari gépkocsibeálló is vásárolható, így a parkolás mindig kényelmes és biztonságos.
A lakások átadása 2026 nyarán várható, így a mostani foglalással biztosíthatja a kedvező elérhetőséget és a legjobb választást a rendelkezésre álló lakások közül.
A hirdetésben szereplő információk a megbízótól kapott adatok alapján készültek, pontosságukért felelősséget nem vállalunk!
Amennyiben vásárláshoz hitelre is szüksége van, független hitel tanácsadónk ingyenesen tud Önnek segítséget nyújtani a legjobb konstrukciók kiválasztásában és a folyamat lebonyolításában. Irodánk kereső ügyfeleinknek teljes körű szolgáltatást nyújt, szakszerű tanácsadással, energetikai tanúsítvány elkészítésével, hitelügyintézéssel és profi ügyvédi segítséggel. Abban az esetben ha az ingatlan felkeltette érdeklődését keressen bizalommal!
Projekt bemutatása
Új építésű, amerikai konyhás, 1 szobás lakások eladók Nyíregyháza belvárosában, a Hatzel tér közelében! a 10 lakásos társasház csendes utcában épül, erkélyes lakásokkal, garázs- és udvari beálló lehetőséggel. 30-As szigetelés, 3 rétegű nyílászárók, padlófűtés, klíma – minden adott a modern élethez.
Átadás: 2026 nyár. Foglaljon időben!
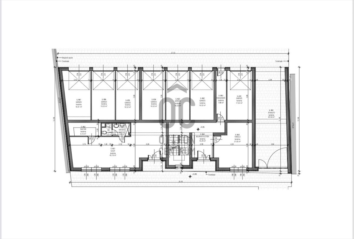
Garázs: 10. 000. 000 Ft
Udvari beálló: 3. 000. 000 Ft
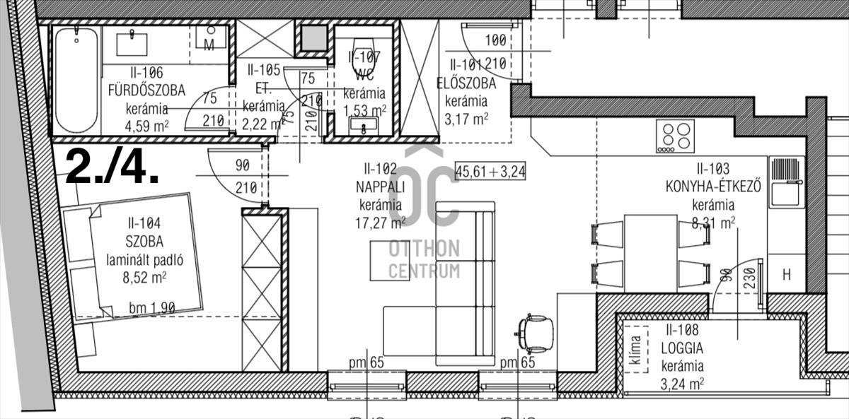
1. emelet
1. Lakás: 49, 66 nm + 3, 60 nm erkély
2. Lakás: 48, 16 nm + 3, 60 nm erkély
3. Lakás 46, 39 nm + 3, 60 nm erkély
4. Lakás 48, 29 nm + 3, 24 nm loggia ELKELT!
5. Lakás 48, 55 nm + 3, 24 nm loggia
2. emelet
1. Lakás: 49, 66 nm + 3, 60 nm erkély
2. Lakás: 48, 16 nm + 3, 60 nm erkély
3. Lakás: 46, 39 nm + 3, 60 nm erkély
4. Lakás: 45, 61 nm + 3, 24 nm loggia
5. Lakás: 45, 63 nm + 3, 24 nm loggia
A hirdetésben szereplő információk a megbízótól kapott adatok alapján készültek, pontosságukért felelősséget nem vállalunk! Az alaprajz csak tájékoztató JELLEGŰ!
Amennyiben vásárláshoz hitelre is szüksége van, független hitel tanácsadónk ingyenesen tud Önnek segítséget nyújtani a legjobb konstrukciók kiválasztásában és a folyamat lebonyolításában. Irodánk kereső ügyfeleinknek teljes körű szolgáltatást nyújt, szakszerű tanácsadással, energetikai tanúsítvány elkészítésével, hitelügyintézéssel és profi ügyvédi segítséggel. Abban az esetben ha az ingatlan felkeltette érdeklődését keressen bizalommal! FIX 3% lakáshitelre megvehető
Tetszett ez az eladó Nyíregyházai új építésű 2 szobás tégla lakás? Hívd fel a hirdetőt most, és tudj meg mindent erről az eladó tégla lakásról! Ha gondolod nézelődj tovább az eladó lakás Nyíregyháza oldal hirdetései között. Ennek az eladó lakásnak az ára 51953000 Ft és mivel az alapterülete 49 négyzetméter, ezért az átlagos négyzetméterára 1060265 HUF/m2.
Az eladó lakások menüpontban további hirdetések között is böngészhetsz. Ha van kedved, akkor böngészhetsz a Ugrai Roland összes hirdetése között, vagy akár a/az Otthon Centrum Nyíregyháza - Egyház utca 7 összes hirdetése között is.

