Eladó jó állapotú lakás - Nyíregyháza
- INGYENES HIRDETÉS FELADÁS
Ingatlan adatai
- Eladó vagy kiadó:Eladó
- Település:Nyíregyháza
- Kategória:Lakás
- Alkategória:Tégla
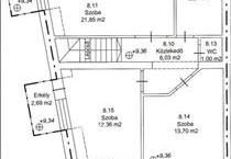
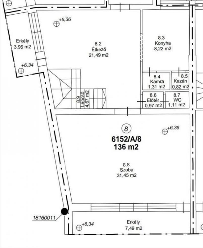
- Alapterület:140 m2
- Csere is:Nem
- Hirdető:Cég
- Élő videón megtekinthető:Nem
- Szobaszám:2 + 2 fél
- Állapot:Jó állapotú
- Hány szintes az ingatlan:Földszintes
- Komfortosság:nincs megadva
- Hányadik emeleti:1
- Erkély:nincs megadva
- Lift:Nincs
- Parkolási lehetőség:Teremgarázsban
- Fűtés:Gáz (cirko)
- Bútorozottság:nincs megadva
- Fényviszony:Napfényes
- Tájolás:nincs megadva
- Kilátás:nincs megadva
- Internet:nincs megadva
- Klíma:nincs megadva
- Akadálymentesített:nincs megadva
- Energiatanúsítvány:nincs megadva
- Villany:Van
- Víz:Van
- Gáz:nincs megadva
- Csatorna:Van
- Közös költség:15 000 Ft
- Kapcsolatfelvétel

Nádasdi Bence
+36-(20)-451-6275
Mondd meg a hirdetőnek, hogy a megveszLAK-on találtad a hirdetést.
Referencia szám: M319186
Hitel ajánlatok
Ingatlan hirdetés leírása
Eladó Lakás, Nyíregyháza
Belvárosi luxus a Szabadtéri Színpadnál! 140 Nm-es, belső kétszintes lakás garázsvásárlási lehetőséggel!
Keresi azt a tágas, elegáns otthont, ahol a belváros pezsgése és a kultúra szó szerint a küszöbön várja? Nyíregyháza belvárosának egyik legkedveltebb részén eladó egy azonnal költözhető, 140 nm -es, 2+2 szobás, belső kétszintes tégla lakás, hatalmas erkéllyel!
MIÉRT páratlan ez az INGATLAN?
Hatalmas, belső kétszintes élettér: Bár a lakás a rendkívül kényelmes 1. emeleten helyezkedik el, belül két szinttel rendelkezik. a 140 négyzetméteres alapterületen a 2 egész és 2 félszoba tökéletes szeparációt és privát szférát biztosít minden tagnak.
Panoráma a Szabadtéri Színpadra: Az utcafronti, nagyméretű erkélyről tökéletes rálátás nyílik a Szabadtéri Színpadra, így a nyári kulturális esték hangulatát akár a saját otthonából, egy pohár bor mellől is élvezheti.
Fényárban úszó terek: a Dél-Nyugati tájolásnak köszönhetően az ingatlan egész nap csodálatosan világos és napfényes.
Sokoldalú hasznosítás: a tágas elrendezés ideális nagyobb családoknak, de a szeparált terek miatt kényelmes otthoni munkavégzéshez (home office) vagy exkluzív bérbeadásra is tökéletes.
Opcionális garázs: a belvárosban aranyat ér a biztonságos parkolás! Az épület aljában található egy önálló garázs, amely a lakáshoz külön megvásárolható, így autója is maximális biztonságban lehet.
Azonnal költözhető: Az ingatlan per- és tehermentes, az adásvételt követően azonnal birtokba vehető.
FINANSZÍROZÁS és ÜGYINTÉZÉS:
OTP Banki hátterünknek köszönhetően finanszírozási igényekben (pl. Otthon Start Hitelprogram, Babaváró, Falusi csok, CSOK Plusz, Lakáshitel, Személyi kölcsön stb. ), Illetve biztosítások tekintetében is díjmentesen, soron kívüli ügyintézéssel segítjük ügyfeleinket!
Ez a kivételes adottságú, tágas belvárosi otthon ritka alkalom a piacon. Várom hívását, tekintse meg személyesen is!
Referenciaszám: m319186 FIX 3% lakáshitelre megvehető
Tetszett ez az eladó Nyíregyházai jó állapotú 2 egész és 2 fél szobás tégla lakás? Hívd fel a hirdetőt most, és tudj meg mindent erről az eladó tégla lakásról! Ha gondolod nézelődj tovább az eladó lakás Nyíregyháza oldal hirdetései között. Ennek az eladó lakásnak az ára 64900000 Ft és mivel az alapterülete 140 négyzetméter, ezért az átlagos négyzetméterára 463571 HUF/m2.
Az eladó lakások menüpontban további hirdetések között is böngészhetsz. Ha van kedved, akkor böngészhetsz a Nádasdi Bence összes hirdetése között, vagy akár a/az OTPip Nyíregyháza Sólyom utca 4 - OTP Ingatlanpont Iroda összes hirdetése között is.

