Eladó újszerű állapotú lakás - Nyíregyháza
- INGYENES HIRDETÉS FELADÁS
Ingatlan adatai
- Eladó vagy kiadó:Eladó
- Település:Nyíregyháza
- Kategória:Lakás
- Alkategória:Tégla
- Alapterület:83 m2
- Csere is:Nem
- Hirdető:Cég
- Élő videón megtekinthető:Nem
- Szobaszám:3
- Állapot:Újszerű, kitűnő
- Hány szintes az ingatlan:3 szintes
- Komfortosság:nincs megadva
- Hányadik emeleti:Tetőtér
- Erkély:nincs megadva
- Lift:nincs megadva
- Parkolási lehetőség:Beállóban
- Fűtés:nincs megadva
- Bútorozottság:Bútorozott
- Fényviszony:nincs megadva
- Tájolás:NY
- Kilátás:nincs megadva
- Internet:Szélessávú (>10Mbps)
- Klíma:Van
- Akadálymentesített:nincs megadva
- Energiatanúsítvány:nincs megadva
- Villany:Van
- Víz:Van
- Gáz:Van
- Csatorna:Van
- Közös költség:10 000 Ft
- Kapcsolatfelvétel

Reichert Róbert
+36-(30)-983-9036
Mondd meg a hirdetőnek, hogy a megveszLAK-on találtad a hirdetést.
Hitel ajánlatok
Ingatlan hirdetés leírása
Eladó különleges, nagy teraszos lakás Nyíregyháza belvárosában...
Eladó exkluzív, teljesen felszerelt tetőtéri lakás Nyíregyháza belvárosában – nagy terasszal, opcionális zárt garázzsal és Udvari PARKOLÓVAL!
Építés éve: 2009
Emelet: 3. (Tetőtér, lift nincs)
Állapot: kiváló, azonnal költözhető
Jogállás: tehermentes
Energetikai tanúsítvány: rendelkezésre áll
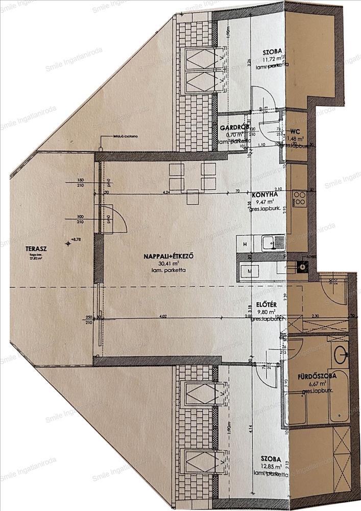
Területi adatok – átláthatóan, korrekten
• Hasznos lakótér (1, 90 m feletti belmagasság): 83, 1 m²
• Nettó alapterület (teljes, faltól falig mért): 110, 92 m²
• Redukált alapterület (értékbecslés szerinti): 97, 01 m²
• Fedett terasz nettó területe: 27, 82 m²
(ebből ténylegesen használható, redukált: 13, 91 m²)
A lakás tágas, világos terekkel rendelkezik, a teljes nettó alapterület 110, 92 m², ebből a ténylegesen, 1, 90 m feletti belmagassággal használható lakótér 83, 1 m². Az értékbecslésnél figyelembe vett, ún. Redukált alapterület 97, 01 m². a fedett terasz is jelentős életteret biztosít.
Lakás főbb jellemzői
• Amerikai konyhás nappali + 2 hálószoba + gardrób
• Fürdőszoba káddal és zuhanyzóval, külön WC
• Prémium felszereltség:
• Riasztórendszer
• Központi klíma
• Motoros redőnyök
• Bosch teljes gépesítés
• Viessmann kondenzációs kazán, padló- és radiátoros fűtés
• Tetőtéri ablakokon hő- és fényvédő rolók
• Egyedi bejárati ajtó
• Egyedi, juharfa bútorzat mahagóni színben (ajtók és teljes bútorzat)
• Szobákban laminált padló, egyéb helyiségekben magas fényű spanyol csempe
• a lakás teljes bútorzattal együtt eladó!
Parkolás és garázs
• Belső udvari parkolóhely a vételárban benne van
• Zárt, 11 m²-es garázs külön megállapodás alapján vásárolható (irányár: 6 500 000 Ft)
• Belső udvarban, riasztóval, bútorzattal
• a garázs önállóan is értékes, a belvárosban ritka lehetőség, növeli az ingatlan értékét és kényelmét
Társasház és környék
• 2009-ben épült, tégla szerkezetű, 10 cm-es szigeteléssel
• Rendezett, kulturált lakóközösség
• Belvárosi elhelyezkedés, Bujtosi-tó közelsége
• Iskola, óvoda, üzletek, parkok, tömegközlekedés pár perc sétára
• Közös költség: kedvező
Miért éppen ez a lakás?
• Ritka, prémium felszereltség és teljes bútorzat
• Nagy, fedett terasz a belvárosban
• Kiváló műszaki állapot, energiatakarékos fűtés
• Azonnal költözhető, tehermentes
• Udvari parkoló a vételárban, opcionális zárt garázs
• Befektetésnek és saját otthonnak is ideális
Ne hagyja ki ezt a páratlan lehetőséget!
Az ingatlan azonnal költözhető, a garázs külön megállapodás alapján vásárolható meg.
Érdeklődjön bizalommal telefonon vagy e-mailben, akár hétvégén is!
A megtekintés rugalmasan, előzetes egyeztetéssel lehetséges. FIX 3% lakáshitelre megvehető
Tetszett ez az eladó Nyíregyházai újszerű állapotú 3 szobás tégla lakás? Hívd fel a hirdetőt most, és tudj meg mindent erről az eladó tégla lakásról! Ha gondolod nézelődj tovább az eladó lakás Nyíregyháza oldal hirdetései között. Ennek az eladó lakásnak az ára 94900000 Ft és mivel az alapterülete 83 négyzetméter, ezért az átlagos négyzetméterára 1143373 HUF/m2.
Az eladó lakások menüpontban további hirdetések között is böngészhetsz. Ha van kedved, akkor böngészhetsz a Reichert Róbert összes hirdetése között, vagy akár a/az Smile Ingatlaniroda összes hirdetése között is.

