Eladó jó állapotú lakás - Nyíregyháza
- INGYENES HIRDETÉS FELADÁS
Ingatlan adatai
- Eladó vagy kiadó:Eladó
- Település:Nyíregyháza
- Kategória:Lakás
- Alkategória:Tégla
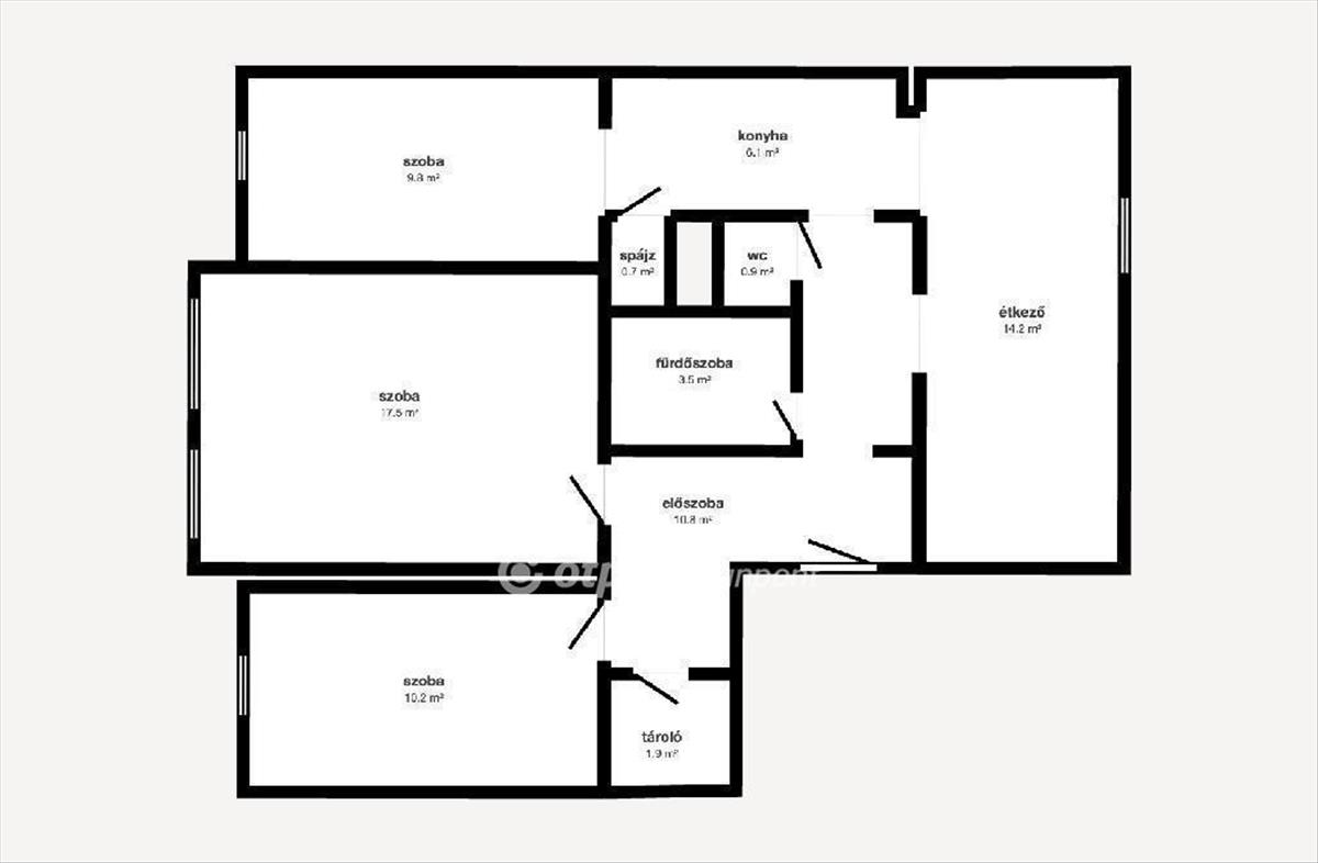
- Alapterület:66 m2
- Csere is:Nem
- Hirdető:Cég
- Élő videón megtekinthető:Nem
- Szobaszám:3
- Állapot:Jó állapotú
- Hány szintes az ingatlan:4 szintes
- Komfortosság:nincs megadva
- Hányadik emeleti:4
- Erkély:nincs megadva
- Lift:Nincs
- Parkolási lehetőség:nincs megadva
- Fűtés:Távfűtés
- Bútorozottság:nincs megadva
- Fényviszony:Napfényes
- Tájolás:nincs megadva
- Kilátás:nincs megadva
- Internet:nincs megadva
- Klíma:nincs megadva
- Akadálymentesített:nincs megadva
- Energiatanúsítvány:nincs megadva
- Villany:Van
- Víz:Van
- Gáz:nincs megadva
- Csatorna:Van
- Közös költség:7 000 Ft
- Kapcsolatfelvétel

Nádasdi Bence
+36-(20)-451-6275
Mondd meg a hirdetőnek, hogy a megveszLAK-on találtad a hirdetést.
Referencia szám: M317565
Hitel ajánlatok
Ingatlan hirdetés leírása
Eladó Lakás, Nyíregyháza
Belvárosi Ritkaság! 3 Szobás Tégla Lakás Zárt Udvarral és Garázzsal!
Szeretne a belváros szívében élni, de nem mondana le a csendről és a biztonságos parkolásról? Eladóvá vált Nyíregyháza központjában egy 66 nm -es, 1+2 félszobás, kiváló elrendezésű tégla lakás, amely minden kényelmet kielégít.
MIÉRT ez a lakás a legjobb VÁLASZTÁS?
TÉGLA és hűvös: a tégla építésnek és a beépített légkondicionálónak köszönhetően a lakás klímája nyáron is tökéletes.
PRAKTIKUS elrendezés: Az 1 tágas szoba mellett 2 külön nyíló félszoba található, így ideális választás családoknak (gyerekszoba/dolgozószoba igénye esetén) vagy befektetésnek is.
ZÁRT Udvar és parkolás: a belvárosban a parkolás kincs! Itt egy rendezett, zárt udvar várja, ahol sátorgarázsos parkolási lehetőség biztosított az év minden napján.
ALACSONY rezsi: a fűtés mért távhővel megoldott, a közös költség pedig mindössze 7. 000 Ft/hó, ami egy ekkora lakásnál rendkívül kedvező.
EXTRÁK: Külön fürdő és wc, saját kerékpártároló a lépcsőházban, tiszta és kulturált lakóközösség.
LOKÁCIÓ:
Pár perc sétával elérhető a Kossuth tér, a piac, bankok és üzletek, mégis egy csendes mellékutcában pihenhet. a tömegközlekedés kiváló, minden csomópont a közelben van.
NÉZZE meg OTTHONRÓL!
Ne raboljuk egymás idejét feleslegesen: járja be a lakást virtuálisan a 3d websétánk segítségével, mielőtt személyesen is megtekintené!
Kattintson a virtuális bemutatóért: https://my. Matterport. Com/show/? M=qtn3uuubxsefrhsc4uaa6g5bd&views=0&mls=1
FINANSZÍROZÁS:
Az ingatlan tehermentes és azonnal megállapodás szerint költözhető. OTP Banki hátteremmel ingyenes, soron kívüli ügyintézést biztosítok minden állami támogatásra és hitelre:
CSOK Plusz, Babaváró, Otthon Start Hitelprogram
Piaci lakáshitelek és biztosítások egy helyen.
Várom hívását, nézzük meg együtt leendő otthonát vagy következő biztos befektetését!
Referenciaszám: m317565 FIX 3% lakáshitelre megvehető
Tetszett ez az eladó Nyíregyházai jó állapotú 3 szobás tégla lakás? Hívd fel a hirdetőt most, és tudj meg mindent erről az eladó tégla lakásról! Ha gondolod nézelődj tovább az eladó lakás Nyíregyháza oldal hirdetései között. Ennek az eladó lakásnak az ára 49500000 Ft és mivel az alapterülete 66 négyzetméter, ezért az átlagos négyzetméterára 750000 HUF/m2.
Az eladó lakások menüpontban további hirdetések között is böngészhetsz. Ha van kedved, akkor böngészhetsz a Nádasdi Bence összes hirdetése között, vagy akár a/az OTPip Nyíregyháza Sólyom utca 4 - OTP Ingatlanpont Iroda összes hirdetése között is.

