Eladó újszerű állapotú lakás - Tápiószele
- INGYENES HIRDETÉS FELADÁS
Ingatlan adatai
- Eladó vagy kiadó:Eladó
- Település:Tápiószele
- Kategória:Lakás
- Alkategória:Tégla
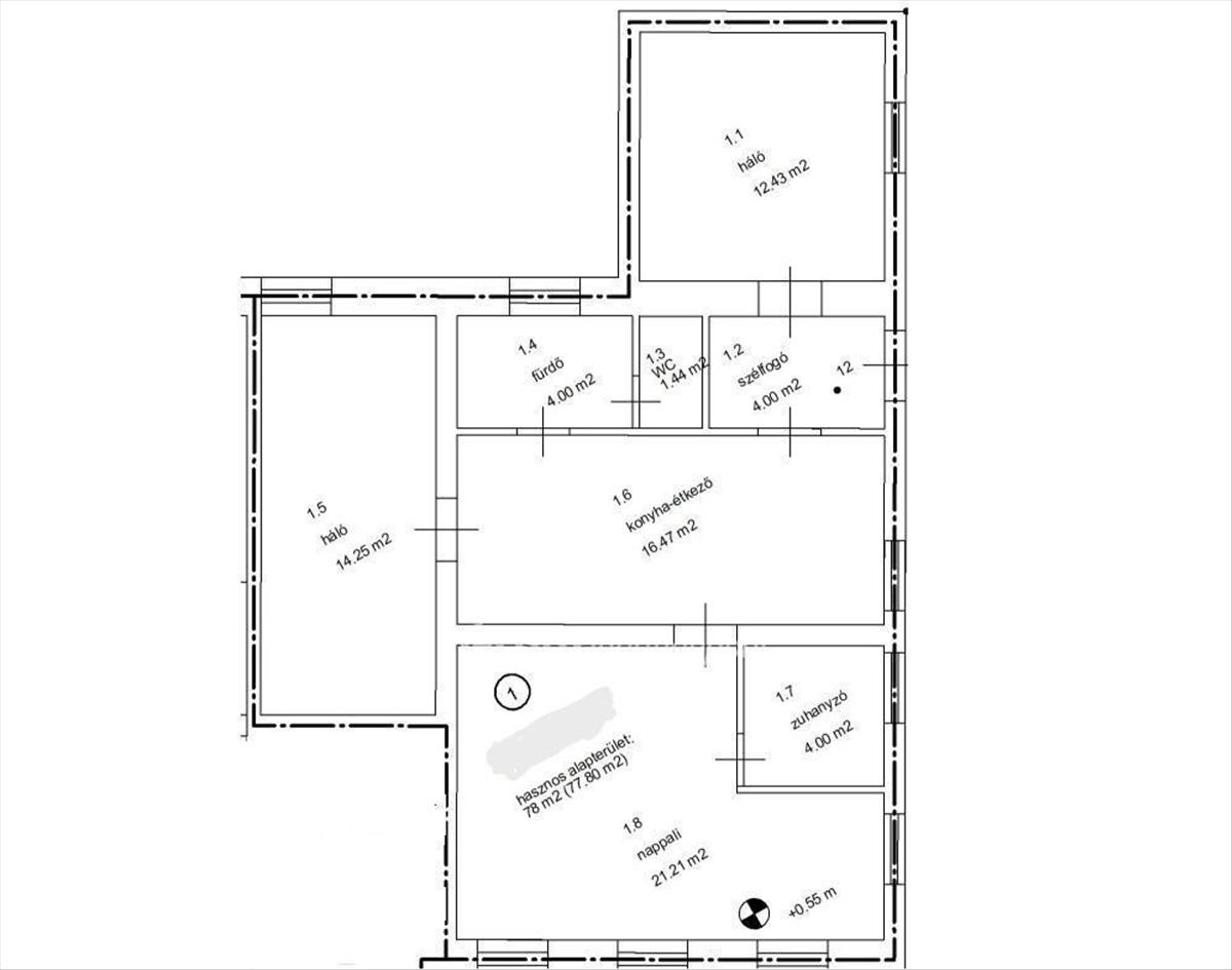
- Alapterület:78 m2
- Csere is:Nem
- Hirdető:Cég
- Élő videón megtekinthető:Nem
- Szobaszám:4
- Állapot:Újszerű, kitűnő
- Hány szintes az ingatlan:Földszintes
- Komfortosság:nincs megadva
- Hányadik emeleti:Földszint
- Erkély:nincs megadva
- Lift:Nincs
- Parkolási lehetőség:Udvaron
- Fűtés:Gáz (cirko)
- Bútorozottság:nincs megadva
- Fényviszony:Jó
- Tájolás:nincs megadva
- Kilátás:nincs megadva
- Internet:nincs megadva
- Klíma:nincs megadva
- Akadálymentesített:nincs megadva
- Energiatanúsítvány:D
- Villany:Van
- Víz:Van
- Gáz:nincs megadva
- Csatorna:Van
- Közös költség:1 000 Ft
- Kapcsolatfelvétel

Kis Katalin
+36-(20)-332-2017
Mondd meg a hirdetőnek, hogy a megveszLAK-on találtad a hirdetést.
Referencia szám: M311955
Hitel ajánlatok
Ingatlan hirdetés leírása
Eladó Lakás, Tápiószele
Eladó Pest vármegyében Tápiószelén a vasútállomás közelében egy 78nm-es földszint 4szobás felújított lakást! Fűtése házközponti gázcírkó padlófűtés, nyáron egy nagyteljesítményű inverteres klíma teszi hűvössé az ingatlant. Az ingatlan ideális több gyerekes családnak itt mindenkinek megvan a külön szoba lehetősége. a villany és a víz fogyasztás egyedi mérőórás a fűtés hőmennyiségmérős. a település elhelyezkedése ideális a keleti pályaudvar vonalán gyors közlekedés biztosított a főváros vagy Szolnok irányában. a közponban minden infrastruktúra megtalálható oktatás, egészségügy, diszkont áruházak különböző üzletek. Az ingatlan elsősorban kp-ra eladó, ügyvédi háttérrel rendelkezem! Jöjjön nézzük meg együtt!
Referencia szám: m311955 FIX 3% lakáshitelre megvehető

