Eladó újszerű állapotú ház - Olaszország, Penne
- INGYENES HIRDETÉS FELADÁS
Ingatlan adatai
- Feladva:6 hónapnál régebbi hirdetés
- Eladó vagy kiadó:Eladó
- Település:Penne
- Kategória:Ház
- Alkategória:Családi ház
- Alapterület:84 m2
- Telekterület:365 m2
- Csere is:Nem
- Hirdető:Cég
- Élő videón megtekinthető:Nem
- Szobaszám:2
- Állapot:Újszerű, kitűnő
- Hány szintes az ingatlan:nincs megadva
- Tetőtér:nincs megadva
- Komfortosság:nincs megadva
- Pince:Nincs
- Parkolási lehetőség:nincs megadva
- Fűtés:nincs megadva
- Bútorozottság:nincs megadva
- Fényviszony:nincs megadva
- Tájolás:nincs megadva
- Kilátás:nincs megadva
- Internet:nincs megadva
- Klíma:nincs megadva
- Akadálymentesített:nincs megadva
- Energiatanúsítvány:nincs megadva
- Villany:nincs megadva
- Víz:nincs megadva
- Gáz:nincs megadva
- Csatorna:nincs megadva
- Kapcsolatfelvétel

Eddie
Rejtett telefonszám.
Írj üzenetet a hirdetőnek.
Írj üzenetet a hirdetőnek.
Mondd meg a hirdetőnek, hogy a megveszLAK-on találtad a hirdetést.
Referencia szám: 1920
Hitel ajánlatok
Ingatlan hirdetés leírása
Eladó ház Penne, Eladó újszerű állapotú ház - Olaszország, Penne
Néhány percre a történelmi központtól Penne-ben található egy különálló ingatlan, amelyet vissza kell állítani, és nagy kertje, valamint gyönyörű kilátás nyílik a völgyre egészen a tengerig.
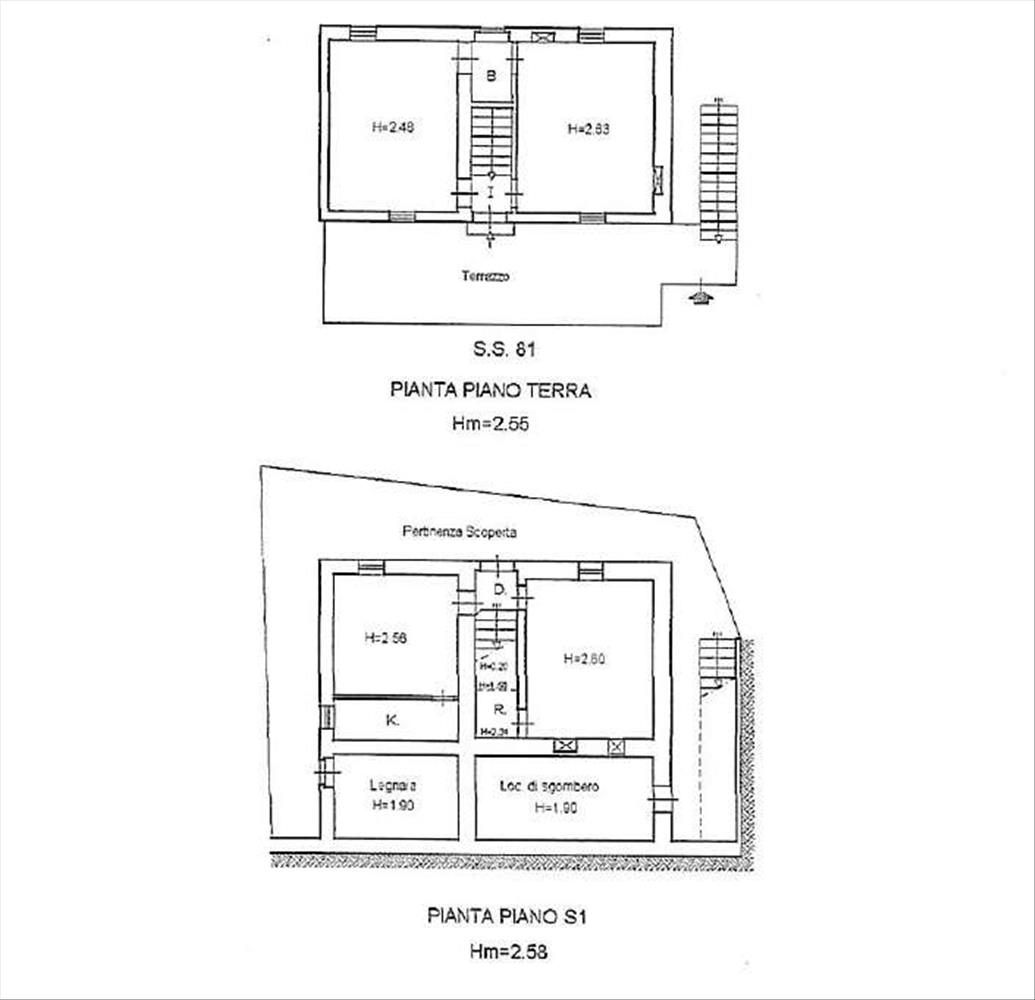
Két szintből áll, és a következőket tartalmazza: Földszint – konyha, nappali, faház és tároló; Első emelet – 2 hálószoba, fürdőszoba és nagy terasz.
A házat körülbelül 300 m²-es kert veszi körül.
Ez ideális számodra, ha szeretnél független maradni, még akkor is, ha a városközponttól rövid távolságra vagy.
Kiváló megoldás nyaralóként vagy B&B-ként való használatra. Hitel.hu - Hasonlítsa össze a bankok lakáshitel ajánlatait
Tetszett ez az eladó Olaszországi újszerű állapotú 2 szobás családi ház? Hívd fel a hirdetőt most, és tudj meg mindent erről az eladó családi házról! Ha gondolod nézelődj tovább az eladó Olaszországi ház oldal hirdetései között. Ennek az eladó háznak az ára 42000 EUR és mivel az alapterülete 84 négyzetméter, ezért az átlagos négyzetméterára 500 EUR/m2.
Az olasz ingatlanok menüpontban további hirdetések között is böngészhetsz. Ha van kedved, akkor böngészhetsz a Eddie összes hirdetése között.

