Eladó újszerű állapotú ház - Olaszország, Castiglione del Lago
- INGYENES HIRDETÉS FELADÁS
Ingatlan adatai
- Feladva:6 hónapnál régebbi hirdetés
- Eladó vagy kiadó:Eladó
- Település:Castiglione del Lago
- Kategória:Ház
- Alkategória:Családi ház
- Alapterület:640 m2
- Telekterület:nincs megadva
- Csere is:Nem
- Hirdető:Cég
- Élő videón megtekinthető:Nem
- Szobaszám:nincs megadva
- Állapot:Újszerű, kitűnő
- Hány szintes az ingatlan:nincs megadva
- Tetőtér:nincs megadva
- Komfortosság:nincs megadva
- Pince:Nincs
- Parkolási lehetőség:nincs megadva
- Fűtés:nincs megadva
- Bútorozottság:nincs megadva
- Fényviszony:nincs megadva
- Tájolás:nincs megadva
- Kilátás:nincs megadva
- Internet:nincs megadva
- Klíma:nincs megadva
- Akadálymentesített:nincs megadva
- Energiatanúsítvány:nincs megadva
- Villany:nincs megadva
- Víz:nincs megadva
- Gáz:nincs megadva
- Csatorna:nincs megadva
- Kapcsolatfelvétel

Eddie
Rejtett telefonszám.
Írj üzenetet a hirdetőnek.
Írj üzenetet a hirdetőnek.
Mondd meg a hirdetőnek, hogy a megveszLAK-on találtad a hirdetést.
Referencia szám: TE103
Hitel ajánlatok
Ingatlan hirdetés leírása
Eladó ház Castiglione del Lago
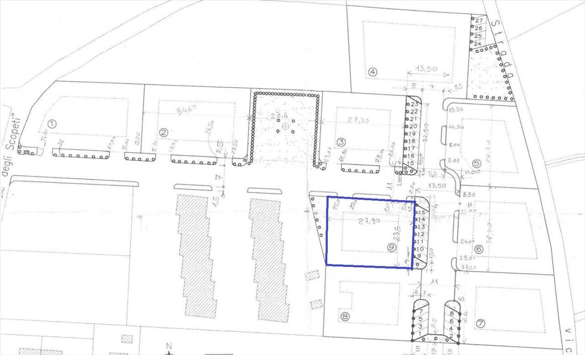
Te103 az építési telek Pozzuolo leírása. Pozzuoloban eladó építési telek, már felosztott és urbanizált. A telek alapterülete 640 négyzetméter, a hozzárendelt térfogat 1050 köbméter. Az épület maximum körülbelül 350 négyzetméter lehet, egy- és több családos használatra. A megengedett legnagyobb magasság 9,5 méter.
Az általunk kínált terület Pozzuolónál található, körülbelül 10 km-re Castiglione del Lago-tól. Itt minden szolgáltatás elérhető: szupermarketek, posta, bankok, iskolák, orvosi klinikák és különböző üzletek. kb. 40 km-re van Perugia. És csak néhány percre van az A1 autópálya kapcsolata a Perugia-Bettolle autópálya csomóponttól.
Ez egy stratégiai helyszín, amely tökéletesen kapcsolódik a legfontosabb történelmi, kulturális és turisztikai érdekekhez, mint Cortona, Arezzo, Siena, Firenze és Róma.
Castiglione del Lago vasútállomása a Roma–Firenze fővonalon található, a közeli Terontola-Cortona állomás és Chiusi állomás pedig fontos csomópontok.
Monte Amiata síterületei mintegy 60 km-re, Grosseto strandjai pedig mindössze 120 km-re vannak.
További információért vagy hasonló megoldásokért látogasd meg honlapunkat, vagy vedd fel velünk a kapcsolatot a 075-951347-es számon.
Ügynökségünk húsz évnyi tapasztalattal büszkélkedhet az ingatlanágazatban, és szakmai segítséget nyújtunk az ingatlan kiválasztásától az előzetes szerződésig, maximális komolyságot és szakértelmet biztosítva. Hitel.hu - Hasonlítsa össze a bankok lakáshitel ajánlatait
Tetszett ez az eladó Olaszországi újszerű állapotú családi ház? Hívd fel a hirdetőt most, és tudj meg mindent erről az eladó családi házról! Ha gondolod nézelődj tovább az eladó Olaszországi ház oldal hirdetései között. Ennek az eladó háznak az ára 60000 EUR és mivel az alapterülete 640 négyzetméter, ezért az átlagos négyzetméterára 94 EUR/m2.
Az olasz ingatlanok menüpontban további hirdetések között is böngészhetsz. Ha van kedved, akkor böngészhetsz a Eddie összes hirdetése között.

