Eladó újszerű állapotú ház - Olaszország, MONTELATERONE
- INGYENES HIRDETÉS FELADÁS
Ingatlan adatai
- Eladó vagy kiadó:Eladó
- Település:MONTELATERONE
- Kategória:Ház
- Alkategória:Családi ház
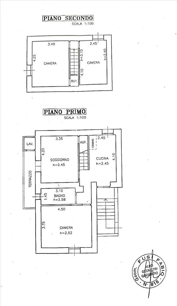
- Alapterület:198 m2
- Telekterület:nincs megadva
- Csere is:Nem
- Hirdető:Cég
- Élő videón megtekinthető:Nem
- Szobaszám:3
- Állapot:Újszerű, kitűnő
- Hány szintes az ingatlan:nincs megadva
- Tetőtér:nincs megadva
- Komfortosság:nincs megadva
- Pince:Nincs
- Parkolási lehetőség:nincs megadva
- Fűtés:nincs megadva
- Bútorozottság:nincs megadva
- Fényviszony:nincs megadva
- Tájolás:nincs megadva
- Kilátás:nincs megadva
- Internet:nincs megadva
- Klíma:nincs megadva
- Akadálymentesített:nincs megadva
- Energiatanúsítvány:nincs megadva
- Villany:nincs megadva
- Víz:nincs megadva
- Gáz:nincs megadva
- Csatorna:nincs megadva
- Kapcsolatfelvétel

Eddie
Rejtett telefonszám.
Írj üzenetet a hirdetőnek.
Írj üzenetet a hirdetőnek.
Mondd meg a hirdetőnek, hogy a megveszLAK-on találtad a hirdetést.
Referencia szám: RP-489329
Hitel ajánlatok
Ingatlan hirdetés leírása
Eladó ház MONTELATERONE
Képzeld el, hogy belépsz egy kis középkori faluba, Montelaterone, a Tuscan Maremma szívébe, ahol minden kő mesél és minden sarokban rejlik egy titok. Itt, az Amiata-hegy lábánál, Toszkána lényege lélegzik: végtelen tájak, autentikus hagyományok és olyan életminőség, amit máshol nehéz megtalálni. És az utolsó házhoz, amely autóval megközelíthető, az ókori falu szélén egy ajtó nyílik egy élményre, amely a modern kényelmet történelmi vonzerővel ötvözi.
Hányszor érezted már, hogy a fotók félrevezetnek? Ha már keresett otthont Toszkánában, ismered ezt az érzést: milyen gyakran ígérik a fotók a paradicsomot, csak hogy te személyesen csalódj? Vagy hány ingatlan tűnik tökéletesnek, de a végtelen felújítás terhe nehezére esik? Most nem. Hiteles élményt a kényelem feladása nélkül. Lehet, hogy te is egy autentikus otthont keresel, amely megőrzi a rusztikus toszkán karaktert, de nem hoz kompromisszumot a kényelemben. Lehet, hogy feladod a gondolatot, hogy a történelem és a kényelem közötti helyes egyensúlyt megtalálhatod. Megtalálni egy olyan visszavonulást, amely költözésre kész, ahol élvezheted az ősi részletek szépségét anélkül, hogy szembesülnél az építkezés káoszával, mindig elérhetetlennek tűnik.
Ez a ház mintegy 200 m² területű, három hálószobával, két fürdőszobával, egy tágas, lakható konyhával és egy kényelmes nappalival. Minden helyiséget ízlésesen felújítottak, kiálló gerendákkal, helyi kövekkel és minőségi kerámiákkal, amelyek elmesélik Toszkána történetét, miközben megőrzik a funkcionalitást. Az igazi gyöngyszem a panorámás terasz, amely a toszkán tájra néz, egy privát sarok, ahol napnyugta idején ihatsz egy pohár bort és élvezheted a végtelen horizontot. És ha szereted a gondolatát, hogy legyen egy projekt a fejben, a ház alsó szintjén két apartman is található, amelyek még felújítást igényelnek — tökéletesek vendégeknek, barátoknak vagy a saját elképzeléseidhez. Hitel.hu - Hasonlítsa össze a bankok lakáshitel ajánlatait
Tetszett ez az eladó Olaszországi újszerű állapotú 3 szobás családi ház? Hívd fel a hirdetőt most, és tudj meg mindent erről az eladó családi házról! Ha gondolod nézelődj tovább az eladó Olaszországi ház oldal hirdetései között. Ennek az eladó háznak az ára 134000 EUR és mivel az alapterülete 198 négyzetméter, ezért az átlagos négyzetméterára 677 EUR/m2.
Az olasz ingatlanok menüpontban további hirdetések között is böngészhetsz. Ha van kedved, akkor böngészhetsz a Eddie összes hirdetése között.

