Eladó új építésű lakás - Nyíregyháza
- INGYENES HIRDETÉS FELADÁS
Ingatlan adatai
- Eladó vagy kiadó:Eladó
- Település:Nyíregyháza
- Kategória:Lakás
- Alkategória:Egyéb
- Alapterület:64 m2
- Csere is:Nem
- Hirdető:Cég
- Élő videón megtekinthető:Nem
- Szobaszám:2
- Állapot:Új építésű
- Hány szintes az ingatlan:nincs megadva
- Komfortosság:nincs megadva
- Hányadik emeleti:1
- Erkély:nincs megadva
- Lift:nincs megadva
- Parkolási lehetőség:nincs megadva
- Fűtés:Gáz (cirko)
- Bútorozottság:nincs megadva
- Fényviszony:nincs megadva
- Tájolás:nincs megadva
- Kilátás:nincs megadva
- Internet:nincs megadva
- Klíma:nincs megadva
- Akadálymentesített:nincs megadva
- Energiatanúsítvány:nincs megadva
- Villany:nincs megadva
- Víz:nincs megadva
- Gáz:nincs megadva
- Csatorna:nincs megadva
- Kapcsolatfelvétel

Gáváné Irén
+36-(30)-577-8872
Mondd meg a hirdetőnek, hogy a megveszLAK-on találtad a hirdetést.
Hitel ajánlatok
Ingatlan hirdetés leírása
NYÍREGYHÁZÁN A BELVÁROS KÖZELÉBEN ÚJ ÉPÍTÉSŰ TÁRSASHÁZBAN 2 SZ...
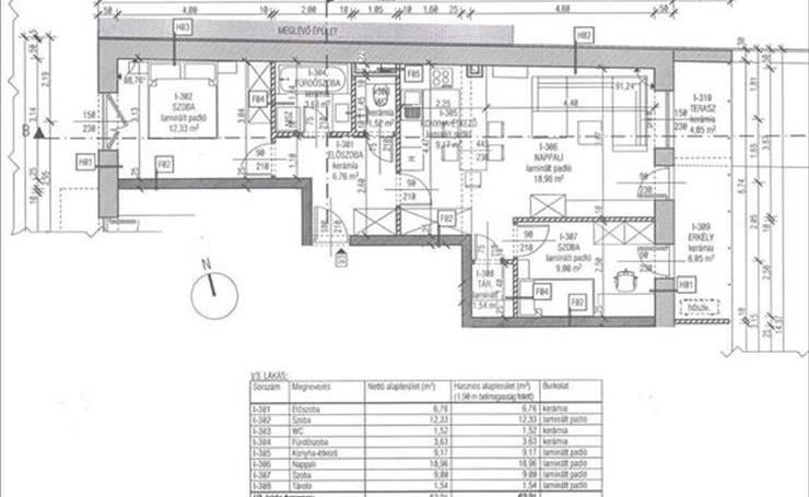
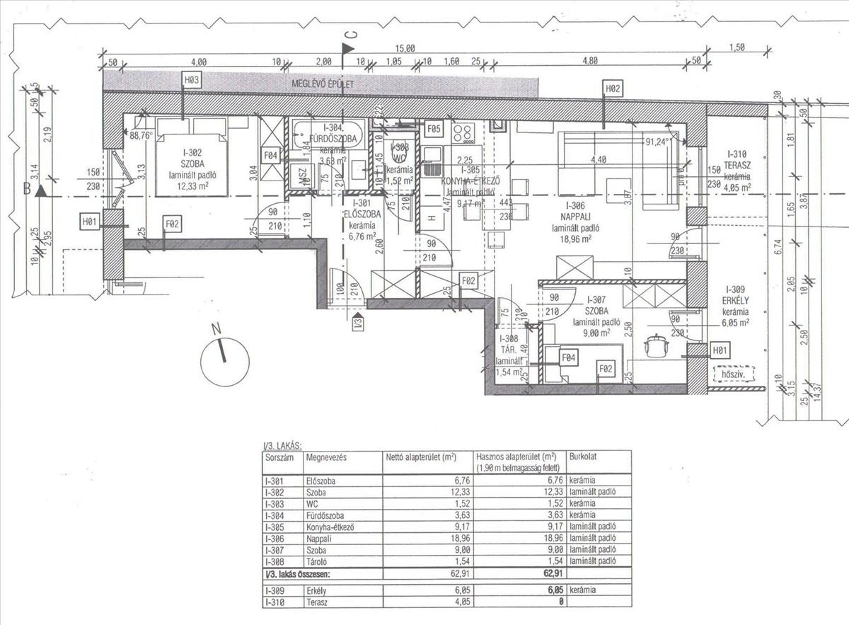
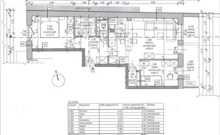
Nyíregyháza belvárosának közelében eladó egy új építésű társasházban található, 1. emeleti 62, 91 nm -es 2 szoba+ amerikai konyhás nappalis lakás, 4, 05-nm -es erkéllyel.
A lakás 7 lakásos szigetelt társasházban található, műanyag nyílászárókkal felszerelt, fűtését egyedi gázfűtés biztosítja padlófűtéssel. a burkolatok és a nyílászárók készültségi foktól függően választhatók. Igény szerint az ingatlanhoz garázs vásárlási lehetőség is biztosított.
További lakások:
Fóldszinten 44, 92 nm -es 1 szoba+ amerikai konyhás nappalis.
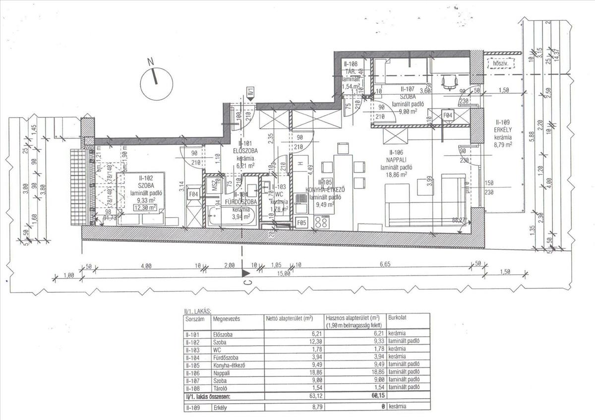
1. emeleti 63, 12 nm -es 2 szoba+ amerikai konyhás nappalis, 8, 79-nm -es erkéllyel.
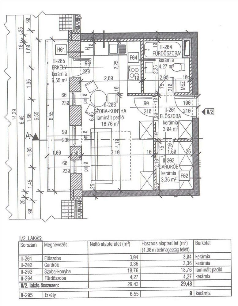
1. emeleti 29, 43 nm -es 1 szoba+ amerikai konyhás lakás, gardróbszobával.
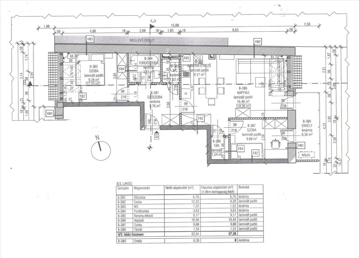
2. emeleti 60, 15 nm -es 2 szoba+ amerikai konyhás nappalis, 8, 79-nm -es erkéllyel.
2. emeleti 29, 43 nm -es 1 szoba+ amerikai konyhás, gardróbszobás, 6, 55-nm es erkéllyel.
2. emeleti 62, 91 nm -es 2 szoba+ amerikai konyhás nappalis, 6, 36-nm -es erkéllyel, tárolóval.
Bármilyen kérdése van az ingatlannal kapcsolatban, annak hitelfinanszírozásáról, vagy ha személyesen megtekintené, keressen bizalommal!
Megtekintheti további hirdetéseimet. Https://favoritingatlan. Hu/ertekesito/144/hegedus-istvanAz ingatlan azonosítója: 68160Érdeklődni: +36305778872 FIX 3% lakáshitelre megvehető
Tetszett ez az eladó Nyíregyházai új építésű 2 szobás lakás? Hívd fel a hirdetőt most, és tudj meg mindent erről az eladó lakásról! Ha gondolod nézelődj tovább az eladó lakás Nyíregyháza oldal hirdetései között. Ennek az eladó lakásnak az ára 68900000 Ft és mivel az alapterülete 64 négyzetméter, ezért az átlagos négyzetméterára 1076562 HUF/m2.
Az eladó lakások menüpontban további hirdetések között is böngészhetsz. Ha van kedved, akkor böngészhetsz a Gáváné Irén összes hirdetése között, vagy akár a/az Favorit Ingatlanközvetítő Iroda összes hirdetése között is.

