Eladó újszerű állapotú lakás - Nyíregyháza
- INGYENES HIRDETÉS FELADÁS
Ingatlan adatai
- Eladó vagy kiadó:Eladó
- Település:Nyíregyháza
- Kategória:Lakás
- Alkategória:Tégla
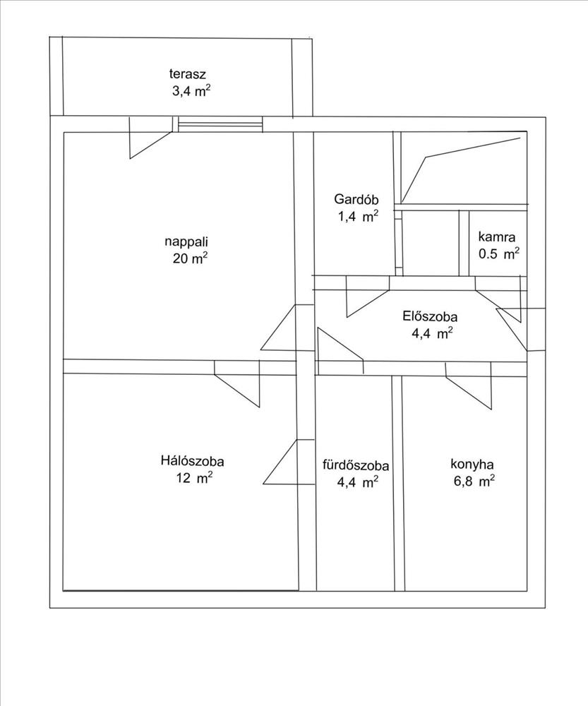
- Alapterület:55 m2
- Csere is:Nem
- Hirdető:Cég
- Élő videón megtekinthető:Nem
- Szobaszám:2
- Állapot:Újszerű, kitűnő
- Hány szintes az ingatlan:nincs megadva
- Komfortosság:nincs megadva
- Hányadik emeleti:3
- Erkély:nincs megadva
- Lift:nincs megadva
- Parkolási lehetőség:nincs megadva
- Fűtés:Gáz (konvektor)
- Bútorozottság:nincs megadva
- Fényviszony:nincs megadva
- Tájolás:nincs megadva
- Kilátás:nincs megadva
- Internet:nincs megadva
- Klíma:nincs megadva
- Akadálymentesített:nincs megadva
- Energiatanúsítvány:nincs megadva
- Villany:nincs megadva
- Víz:nincs megadva
- Gáz:nincs megadva
- Csatorna:nincs megadva
- Kapcsolatfelvétel

Gáváné Irén
+36-(30)-577-8872
Mondd meg a hirdetőnek, hogy a megveszLAK-on találtad a hirdetést.
Hitel ajánlatok
Ingatlan hirdetés leírása
Nyíregyházán, Deák Ferenc Úton, Azonnal Birtokba Vehető, 2 Szo...
Nyíregyházán, Deák Ferenc Úton, Azonnal Birtokba Vehető, 55 nm -es, 2 Szobás, Erkélyes Lakás Eladó!
Szigetelt, tégla építésű társasház 3. emeletén található, gázkonvektoros fűtéssel, műanyag nyílászárókkal, parketta, járólap burkolatokkal, saját tárolóval rendelkezik.
A lakásban 2 szoba, konyha, kamra, fürdőszoba-wc, erkély található.
Energetikai besorolása: CC.
Az ingatlan Befektetésre is kiválóan alkalmas.
Amennyiben felkeltette érdeklődését várom hívását!
Vásárlóinknak a szolgáltatás Díjtalan!
Az ingatlan azonosítója: 69673Érdeklődni: +36305778872 FIX 3% lakáshitelre megvehető
Tetszett ez az eladó Nyíregyházai újszerű állapotú 2 szobás tégla lakás? Hívd fel a hirdetőt most, és tudj meg mindent erről az eladó tégla lakásról! Ha gondolod nézelődj tovább az eladó lakás Nyíregyháza oldal hirdetései között. Ennek az eladó lakásnak az ára 36900000 Ft és mivel az alapterülete 55 négyzetméter, ezért az átlagos négyzetméterára 670909 HUF/m2.
Az eladó lakások menüpontban további hirdetések között is böngészhetsz. Ha van kedved, akkor böngészhetsz a Gáváné Irén összes hirdetése között, vagy akár a/az Favorit Ingatlanközvetítő Iroda összes hirdetése között is.

