Eladó felújítandó lakás - Budapest II. kerület
- INGYENES HIRDETÉS FELADÁS
Ingatlan adatai
- Eladó vagy kiadó:Eladó
- Település:Budapest II. kerület
- Kategória:Lakás
- Alkategória:Tégla
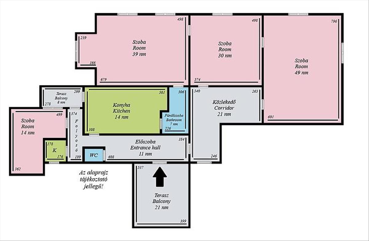
- Alapterület:195 m2
- Csere is:Nem
- Hirdető:Cég
- Élő videón megtekinthető:Nem
- Szobaszám:4
- Állapot:Felújítandó
- Hány szintes az ingatlan:2 szintes
- Komfortosság:Összkomfortos
- Kertkapcsolatos:Igen
- Hányadik emeleti:nincs megadva
- Erkély:nincs megadva
- Lift:nincs megadva
- Parkolási lehetőség:Saját parkoló
- Fűtés:Gáz (cirko)
- Bútorozottság:nincs megadva
- Fényviszony:nincs megadva
- Tájolás:DK
- Kilátás:Utcai
- Internet:nincs megadva
- Klíma:nincs megadva
- Akadálymentesített:nincs megadva
- Energiatanúsítvány:nincs megadva
- Villany:nincs megadva
- Víz:nincs megadva
- Gáz:nincs megadva
- Csatorna:nincs megadva
- Kapcsolatfelvétel

Mille-Case Kft.
+36-(1)-336-1706
Mondd meg a hirdetőnek, hogy a megveszLAK-on találtad a hirdetést.
Hitel ajánlatok
Ingatlan hirdetés leírása
Eladó egy kivételes adottságokkal rendelkező, 195 m²-es, ...
Eladó egy kivételes adottságokkal rendelkező, 195 m²-es, kertkapcsolatos lakás csendes mellékutcában, zöldövezeti környezetben. a lakás külön bejárattal rendelkezik, így teljes intimitást biztosít lakóinak. a 4 méteres belmagasság és a hatalmas ablakok tágas, világos tereket teremtenek, amelyek egyedülálló hangulatot nyújtanak.
Az ingatlan 4 szobával, saját pincével és garázzsal rendelkezik, ami kényelmes parkolást és bőséges tárolási lehetőséget biztosít. a társasház kevés lakásos, így nyugodt, családias légkör várja az új tulajdonost.
Felújítandó állapotban van, ami kiváló lehetőséget kínál arra, hogy saját ízlésére alakítsa ki az otthonát. a kertkapcsolat pedig ideális választássá teszi mindazok számára, akik szeretik a természet közelségét és a privát szabadtéri teret.
Ha egy igazán különleges, világos és tágas otthont keres Budapest egyik legnyugodtabb, zöldövezeti részén, ne hagyja ki ezt a lehetőséget!
Fontos információ a hirdetés képei kapcsán
A hirdetésben szereplő látványtervek azt mutatják be, hogyan nézhet ki a lakás egy felújítást követően, és milyen potenciál rejlik benne. a jelenlegi tulajdonos azonban a felújítást nem fogja elvégezni a kialakítás teljes mértékben az új tulajdonosra vár. Ez valódi lehetőséget jelent arra, hogy a lakás pontosan olyan legyen, amilyet megálmodott. Hitel.hu - Hasonlítsa össze a bankok lakáshitel ajánlatait
Tetszett ez az eladó Budapest II. kerületi felújítandó 4 szobás tégla lakás? Hívd fel a hirdetőt most, és tudj meg mindent erről az eladó tégla lakásról! Ha gondolod nézelődj tovább az eladó lakás Budapest II. kerület oldal hirdetései között. Ennek az eladó lakásnak az ára 389000000 Ft és mivel az alapterülete 195 négyzetméter, ezért az átlagos négyzetméterára 1994872 HUF/m2.
Az eladó lakások menüpontban további hirdetések között is böngészhetsz. Az összes eladó budapesti lakás hirdetést tartalmazó oldalon tudsz böngészni. Ha van kedved, akkor böngészhetsz a Mille-Case Kft. összes hirdetése között, vagy akár a/az MPD Hungary Kft. összes hirdetése között is.

