Eladó újszerű állapotú lakás - Olaszország, Citta della Pieve
- INGYENES HIRDETÉS FELADÁS
Ingatlan adatai
- Eladó vagy kiadó:Eladó
- Település:Citta della Pieve
- Kategória:Lakás
- Alkategória:Tégla
- Alapterület:95 m2
- Csere is:Nem
- Hirdető:Cég
- Élő videón megtekinthető:Nem
- Szobaszám:2
- Állapot:Újszerű, kitűnő
- Hány szintes az ingatlan:nincs megadva
- Komfortosság:nincs megadva
- Hányadik emeleti:nincs megadva
- Erkély:nincs megadva
- Lift:nincs megadva
- Parkolási lehetőség:Garázsban
- Fűtés:nincs megadva
- Bútorozottság:nincs megadva
- Fényviszony:nincs megadva
- Tájolás:nincs megadva
- Kilátás:nincs megadva
- Internet:nincs megadva
- Klíma:nincs megadva
- Akadálymentesített:nincs megadva
- Energiatanúsítvány:nincs megadva
- Villany:nincs megadva
- Víz:nincs megadva
- Gáz:nincs megadva
- Csatorna:nincs megadva
- Kapcsolatfelvétel

Eddie
Rejtett telefonszám.
Írj üzenetet a hirdetőnek.
Írj üzenetet a hirdetőnek.
Mondd meg a hirdetőnek, hogy a megveszLAK-on találtad a hirdetést.
Referencia szám: AP509
Hitel ajánlatok
Ingatlan hirdetés leírása
Eladó lakás Citta della Pieve
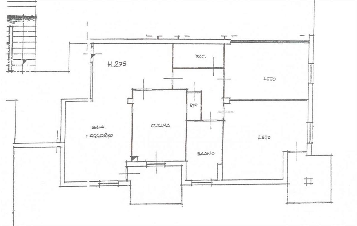
Ap509 - Apartman egy társasházban eladó Moiano. Körülbelül 98 négyzetméter. Ez a lakás a mezzanine padlón található. Az elrendezés a következő: nagy nappali terasszal, konyha, előszoba, közüzemi szoba, két kétágyas hálószoba, egy terasszal, fürdőszoba káddal és zuhanyzós fürdőszobával. Az ingatlanban 20 m²-es garázs található.
Location: Az általunk kínált ingatlan Moiano központi területén található, egy kisvárosban, körülbelül 6 km-re Chiusi-tól, 9 km-re Città della Pieve-től és 14 km-re Castiglione del Lago-tól. Ez is néhány kilométerre van az A1-től Chiusi-Chianciano Terme felé, és a Chiusi vasútállomásról könnyen elérhetők a történelmi, művészeti és kulturális érdekességek, mint például Róma, Siena, Firenze és Perugia. Rendkívül kedvező közelségük miatt csodálatos spa-attrakciók találhatók az elmúlt években, mint például Bagno Vignone, Montalcino, Montepulciano, Pienza, Cetona és San Casciano dei Bagni. A legközelebbi repülőterek: Sant'Egidio Perugiában (körülbelül 60 km), Peretola Firenzében (körülbelül 140 km) és Leonardo da Vinci Rómában Fiumicino (körülbelül 185 km). Monte Amiata síüdülőhelyei körülbelül 60 km-re, Grosseto strandjai pedig mindössze 150 km-re vannak.
További információért vagy hasonló megoldásokért látogasd meg honlapunkat, vagy hívd a 075-951347-es számot. Ügynökségünk húsz év tapasztalattal büszkélkedhet az ingatlanágazatban, és neked nyújtunk szakmai segítséget az egész úton, amely az ingatlan kiválasztásától az előzetes vásárlásig vezet, garantálva a legnagyobb komolyságot és szakértelmet. Hitel.hu - Hasonlítsa össze a bankok lakáshitel ajánlatait
Tetszett ez az eladó Olaszországi újszerű állapotú 2 szobás tégla lakás? Hívd fel a hirdetőt most, és tudj meg mindent erről az eladó tégla lakásról! Ha gondolod nézelődj tovább az eladó Olaszországi lakás oldal hirdetései között. Ennek az eladó lakásnak az ára 85000 EUR és mivel az alapterülete 95 négyzetméter, ezért az átlagos négyzetméterára 895 EUR/m2.
Az olasz ingatlanok menüpontban további hirdetések között is böngészhetsz. Ha van kedved, akkor böngészhetsz a Eddie összes hirdetése között.

