Eladó újszerű állapotú lakás Pécs
| Kedvencbe | Megosztás | Árfigyelő |
| Kedvezményes lakáshitel ajánlatok | ||
| 105 900 000 HUF | ||
Ingatlan adatai
- Eladó vagy kiadó:Eladó
- Település:Pécs
- Kategória:Lakás
- Alkategória:Tégla
- Alapterület:102 m2
- Csere is:Nem
- Hirdető:Cég
- Élő videón megtekinthető:Nem
- Szobaszám:4
- Állapot:Újszerű, kitűnő
- Hány szintes az ingatlan:Földszintes
- Komfortosság:nincs megadva
- Hányadik emeleti:3
- Erkély:Van
- Lift:Nincs
- Parkolási lehetőség:nincs megadva
- Fűtés:Gáz (cirko)
- Bútorozottság:nincs megadva
- Fényviszony:Napfényes
- Tájolás:DK
- Kilátás:nincs megadva
- Internet:nincs megadva
- Akadálymentesített:nincs megadva
- Energiatanúsítvány:nincs megadva
- Villany:Van
- Víz:Van
- Gáz:nincs megadva
- Csatorna:Van
- Üzenetküldés
- Hívás

Referencia szám: LK053503

Hitel ajánlat
Ingatlan hirdetés leírása
Eladó lakás, Pécs, Eladó újszerű állapotú lakás - Pécs
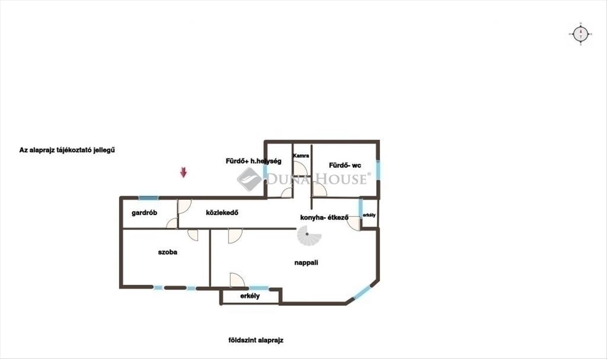
Eladó belvárosi, tágas téglalakás Pécs szívében! Pécs belvárosában kínálunk megvételre egy 102 nm-es, galériás téglalakást, amely tökéletes választás lehet családoknak vagy akár befektetés céljára is. Az ingatlan főbb jellemzői:- Amerikai konyhás nappali + 3 szoba- 2 fürdőszoba, 2 Wc- 2 erkély, amelyek kellemes kikapcsolódási lehetőséget biztosítanak- gáz- cirkó fűtés, alacsony fenntartási költséggel- tágas, világos terek és praktikus elosztás - galériás kialakítás, ami különleges hangulatot kölcsönöz az otthonnak. Az ingatlan kiváló elhelyezkedésének köszönhetően minden fontos szolgáltatás, bolt iskola, egyetem, valamint a belváros pezsgő élete néhány perc sétával elérhető. Amennyiben egy egyedi, jól alakítható, nagy alapterületű belvárosi otthont keresel, ez a lakás remek lehetőség!105900000 Ft
Referencia szám: lk053503 Hitel.hu - Hasonlítsa össze a bankok lakáshitel ajánlatait

