Eladó újszerű állapotú nyaraló - Horvátország, Rab
- INGYENES HIRDETÉS FELADÁS
Ingatlan adatai
- Eladó vagy kiadó:Eladó
- Település:Rab
- Kategória:Nyaraló
- Alkategória:Hétvégi ház
- Alapterület:300 m2
- Telekterület:500 m2
- Csere is:Nem
- Hirdető:Cég
- Élő videón megtekinthető:Nem
- Szobaszám:4
- Állapot:Újszerű, kitűnő
- Hány szintes az ingatlan:nincs megadva
- Tetőtér:nincs megadva
- Komfortosság:nincs megadva
- Pince:Nincs
- Parkolási lehetőség:nincs megadva
- Fűtés:nincs megadva
- Téliesített:nincs megadva
- Bútorozottság:nincs megadva
- Fényviszony:nincs megadva
- Tájolás:nincs megadva
- Kilátás:nincs megadva
- Internet:nincs megadva
- Klíma:nincs megadva
- Akadálymentesített:nincs megadva
- Energiatanúsítvány:nincs megadva
- Villany:nincs megadva
- Víz:nincs megadva
- Gáz:nincs megadva
- Csatorna:nincs megadva
- Kapcsolatfelvétel

Stolz Jelena
+385-(91)-357-30-71
Mondd meg a hirdetőnek, hogy a megveszLAK-on találtad a hirdetést.
Referencia szám: RE-AB-V-52
Hitel ajánlatok
Ingatlan hirdetés leírása
Eladó hétvégi ház Rab
Modern futurisztikus új villa úszómedencével, mindössze 100-150 méterre a tengertől a népszerű Banjolban, Rab szigetén.
A villa éppen 2019-ben készült el, hogy a 2020-as nyári szezon kezdetére teljesen bútorozott és felszerelt legyen.
A teljes felület kb. 300 Nm, a telek kb. 500 Nm. M.
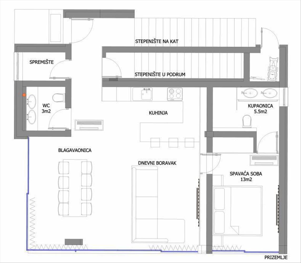
A villa négy szintet kínál -
Földszint: hall, szauna, fürdőszoba, mosókonyha, fitnesz, technikai helyiség.
Közepes szint: bejárat, amerikai konyhás szalon, vendég wc, vendég hálószoba fürdőszobával.
Felső szint: előszoba, három hálószoba fürdőszobával és öltözővel, minikonyha, terasz.
Tetőterasz lenyűgöző kilátással a tengerre.
További részletek:
úszómedence
jakuzzi
bbq zóna
nyári konyha
szauna
fitnesz terület
parkoló 3 autó számára
teljes bútorkészlet
Nagyon ajánlott.
A 985 000 eurós ár tartalmazza az áfát.
Ref: RE-AB-V-52
Összességében a horvátországi ingatlanvásárlót terhelő többletköltség az ingatlan összköltségének körülbelül 7%-a, amely magában foglalja: - vagyonátruházási illeték (az ingatlan értékének 3%-a); - ügynöki/közvetítői jutalék (3%+áfa jutalék); - ügyvédi díj (kb. 1%); - Közjegyzői díj; - bírósági bejegyzési díj; - hivatalos hiteles fordítási költségek. Ügynökségi/közvetítői szerződés aláírása az ingatlanlátogatás előtt történik.
Ingatlanelőnyök: Úszómedence, Edzőterem, Szauna, Modern Hitel.hu - Hasonlítsa össze a bankok lakáshitel ajánlatait
Tetszett ez az eladó Horvátországi újszerű állapotú 4 szobás nyaraló? Hívd fel a hirdetőt most, és tudj meg mindent erről az eladó nyaralóról! Ha gondolod nézelődj tovább az eladó Horvátországi nyaraló oldal hirdetései között. Ennek az eladó nyaralónak az ára 1200000 EUR és mivel az alapterülete 300 négyzetméter, ezért az átlagos négyzetméterára 4000 EUR/m2.
Az horvát ingatlanok menüpontban további hirdetések között is böngészhetsz. Ha van kedved, akkor böngészhetsz a Stolz Jelena összes hirdetése között.

