Eladó újszerű állapotú nyaraló - Horvátország, Labin
- INGYENES HIRDETÉS FELADÁS
Ingatlan adatai
- Eladó vagy kiadó:Eladó
- Település:Labin
- Kategória:Nyaraló
- Alkategória:Hétvégi ház
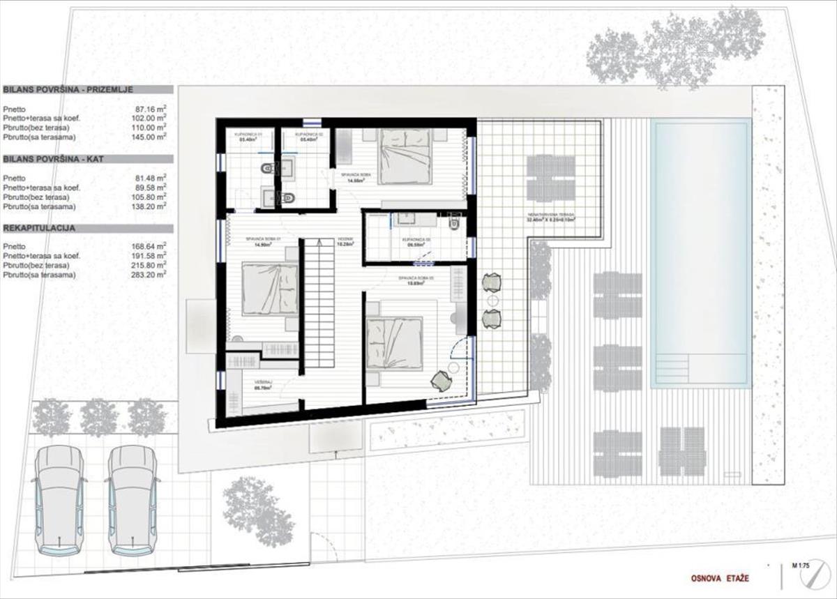
- Alapterület:283 m2
- Telekterület:601 m2
- Csere is:Nem
- Hirdető:Cég
- Élő videón megtekinthető:Nem
- Szobaszám:4
- Állapot:Újszerű, kitűnő
- Hány szintes az ingatlan:nincs megadva
- Tetőtér:nincs megadva
- Komfortosság:nincs megadva
- Pince:Nincs
- Parkolási lehetőség:nincs megadva
- Fűtés:nincs megadva
- Téliesített:nincs megadva
- Bútorozottság:nincs megadva
- Fényviszony:nincs megadva
- Tájolás:nincs megadva
- Kilátás:nincs megadva
- Internet:nincs megadva
- Klíma:nincs megadva
- Akadálymentesített:nincs megadva
- Energiatanúsítvány:nincs megadva
- Villany:nincs megadva
- Víz:nincs megadva
- Gáz:nincs megadva
- Csatorna:nincs megadva
- Kapcsolatfelvétel

Stolz Jelena
+385-(91)-357-30-71
Mondd meg a hirdetőnek, hogy a megveszLAK-on találtad a hirdetést.
Referencia szám: RE-U-30644
Hitel ajánlatok
Ingatlan hirdetés leírása
Eladó hétvégi ház Labin
Modern kialakítású ház medencével Labin környékén!
Labin városától nem messze egy korabeli kialakítású, medencés ház eladó.
Az idilli településen található ház a szakma, a jogszabályi előírások és a területrendezési dokumentáció betartásával készült, és a legmagasabb lakóépületi elvárások szerint épült.
Szelíd építészetével nem zavarja a környezetet, hanem a természeti környezet, a hagyományos isztriai építészet és a modern dizájn szinergiáját teremti meg. a hagyományt a kő és a nyeregtető, a kortárs kifejezést pedig egy nagy formátumú üvegfal szimbolizálja.
A hagyományos építészet tervezési egyszerűsége kompakt alaprajzot és kellemes levegős teret eredményezett.
A modern belső tér, amelyben az enyhe és világos földszínek keverednek az elegáns feketével, két emeletre oszlik, összesen 191, 58 m² nettó területtel, és eleganciát és egyszerűséget sugároz, és magas szintű kényelmet biztosít.
A földszint egy nyitott elrendezésű térből áll, amely a nappalit, az étkezőt és a konyhát egyesíti, és egy tágas fedett teraszra nyílik a nyárikonyha.
A földszint alaprajzát egy hálószoba saját fürdőszobával, vendég WC-vel és kazánházzal egészíti ki.
Az emeleten, az 1. emeleten található három hálószoba saját fürdőszobával, egy mosókonyha és egy tágas terasz.
Az udvar 601 nm . Teljesen bekerített, elegánsan fűvel és mediterrán növényekkel díszített, a központi helyet pedig egy 37 m²-es medence foglalja el napozórésszel.
A feltüntetett ár a kulcsrakész fázisra vonatkozik, beépített szaniterekkel, beépített gardróbbal, konyhával gépekkel.
Ez a tökéletesen integrált ingatlan kivételes lehetőség a kényelmes családi életre, valamint befektetési befektetésnek a turisztikai bérbeadásban. Ref: RE-U-30644
Összességében a horvátországi ingatlanvásárlót terhelő többletköltség az ingatlan összköltségének körülbelül 7%-a, amely magában foglalja: - vagyonátruházási illeték (az ingatlan értékének 3%-a); - ügynöki/közvetítői jutalék (3%+áfa jutalék); - ügyvédi díj (kb. 1%); - Közjegyzői díj; - bírósági bejegyzési díj; - hivatalos hiteles fordítási költségek. Ügynökségi/közvetítői szerződés aláírása az ingatlanlátogatás előtt történik.
Ingatlanelőnyök: Úszómedence, Urbanizált, Modern Hitel.hu - Hasonlítsa össze a bankok lakáshitel ajánlatait
Tetszett ez az eladó Horvátországi újszerű állapotú 4 szobás nyaraló? Hívd fel a hirdetőt most, és tudj meg mindent erről az eladó nyaralóról! Ha gondolod nézelődj tovább az eladó Horvátországi nyaraló oldal hirdetései között. Ennek az eladó nyaralónak az ára 747000 EUR és mivel az alapterülete 283 négyzetméter, ezért az átlagos négyzetméterára 2640 EUR/m2.
Az horvát ingatlanok menüpontban további hirdetések között is böngészhetsz. Ha van kedved, akkor böngészhetsz a Stolz Jelena összes hirdetése között.

