Eladó újszerű állapotú nyaraló - Horvátország, Poreč
- INGYENES HIRDETÉS FELADÁS
Ingatlan adatai
- Eladó vagy kiadó:Eladó
- Település:Poreč
- Kategória:Nyaraló
- Alkategória:Hétvégi ház
- Alapterület:663 m2
- Telekterület:1419 m2
- Csere is:Nem
- Hirdető:Cég
- Élő videón megtekinthető:Nem
- Szobaszám:4
- Állapot:Újszerű, kitűnő
- Hány szintes az ingatlan:nincs megadva
- Tetőtér:nincs megadva
- Komfortosság:nincs megadva
- Pince:Nincs
- Parkolási lehetőség:nincs megadva
- Fűtés:nincs megadva
- Téliesített:nincs megadva
- Bútorozottság:nincs megadva
- Fényviszony:nincs megadva
- Tájolás:nincs megadva
- Kilátás:nincs megadva
- Internet:nincs megadva
- Klíma:nincs megadva
- Akadálymentesített:nincs megadva
- Energiatanúsítvány:nincs megadva
- Villany:nincs megadva
- Víz:nincs megadva
- Gáz:nincs megadva
- Csatorna:nincs megadva
- Kapcsolatfelvétel

Stolz Jelena
+385-(91)-357-30-71
Mondd meg a hirdetőnek, hogy a megveszLAK-on találtad a hirdetést.
Referencia szám: RE-U-41825
Hitel ajánlatok
Ingatlan hirdetés leírása
Eladó hétvégi ház Poreč
Eladó egy luxusvilla panorámás kilátással, mindössze 7, 5 kilométerre a tengertől, a festői Poreč környékén. a 663 m² összterületű ingatlan egy 1, 419 m²-es tágas telken helyezkedik el, és a modern eleganciát, az építészeti harmóniát és a prémium építési minőséget ötvözi. a csendes istriai falusi környezetben elhelyezkedő villa békét, magánszférát és egy valódi helyi atmoszférát kínál, miközben közel van a közeli istriai városok pezsgő városi életéhez és szolgáltatásaihoz.
A villa formájában és színében is zökkenőmentesen illeszkedik a természetes környezetébe, tökéletes egyensúlyt teremtve az intimitás és a kifinomultság között. Három szinten épült, amelyeket belső lépcsőház és lift köt össze, az elrendezés a nyitottságot, a praktikusságot és a világos tereket hangsúlyozza.
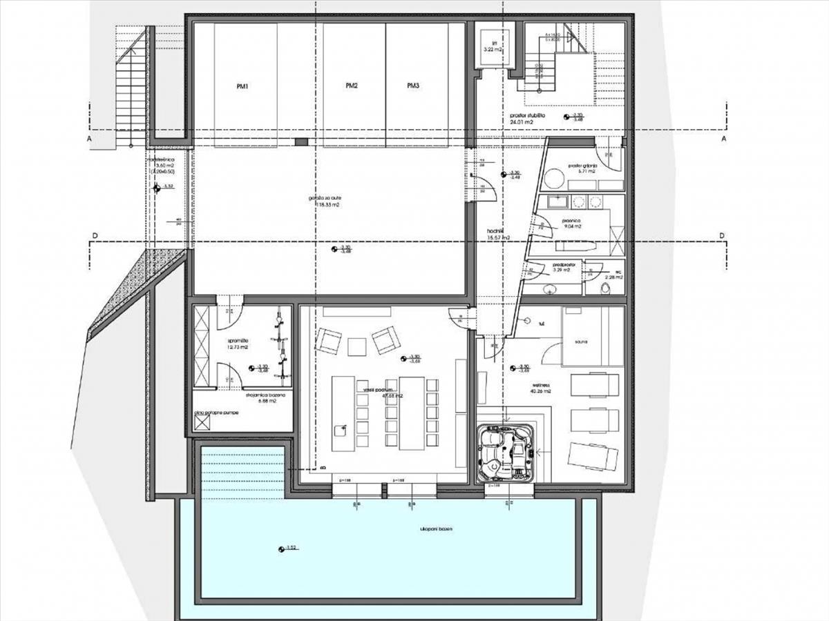
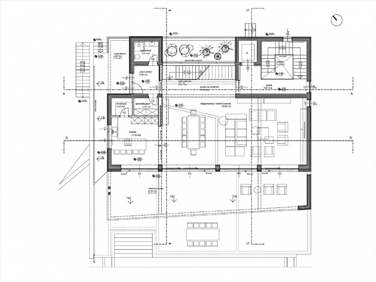
A pincében egy gyönyörűen megtervezett borospince, egy wellness zóna szaunával és pezsgőfürdővel, egy fürdőszoba, mosókonyha, technikai és tárolóhelyiségek, valamint egy három autó befogadására alkalmas garázs található. a földszinten az amerikai konyhás, étkező és nappali közvetlenül egy fedett teraszra nyílik, ideális teret teremtve a pihenésre vagy a szórakozásra. Ezen a szinten egy fürdőszoba és egy tárolószoba is található.
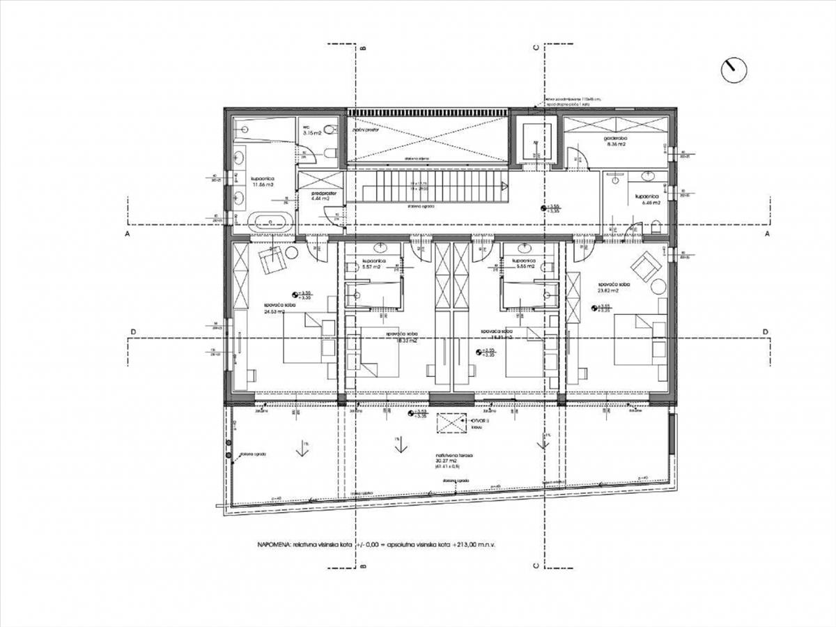
Az első emeleten négy tágas hálószoba található, mindegyik saját fürdőszobával és hozzáféréssel egy fedett teraszra, valamint egy folyosóval és egy gardróbbal, biztosítva a maximális kényelmet és magánéletet. a parkosított kert gondosan megtervezett mediterrán növényekkel és hangulatos világítással van berendezve, míg egy privát medence napozóterülettel teszi teljessé a kültéri életteret. Ez az ingatlan kiváló választás azok számára, akik egy luxus családi otthont keresnek egy csendes, mégis összekapcsolt helyszínen, vagy befektetők számára, akik belépni kívánnak a prémium nyaralópiacra. a villa a befejezés végső szakaszában kerül értékesítésre, bútorok nélkül, lehetővé téve a jövőbeli tulajdonosok számára, hogy a belső teret saját ízlésük szerint alakítsák. Az eladó jogi személy, az árban az áfa benne van. Ref: RE-U-41825
Összességében a horvátországi ingatlanvásárlót terhelő többletköltség az ingatlan összköltségének körülbelül 7%-a, amely magában foglalja: - vagyonátruházási illeték (az ingatlan értékének 3%-a); - ügynöki/közvetítői jutalék (3%+áfa jutalék); - ügyvédi díj (kb. 1%); - Közjegyzői díj; - bírósági bejegyzési díj; - hivatalos hiteles fordítási költségek. Ügynökségi/közvetítői szerződés aláírása az ingatlanlátogatás előtt történik. Hitel.hu - Hasonlítsa össze a bankok lakáshitel ajánlatait
Tetszett ez az eladó Horvátországi újszerű állapotú 4 szobás nyaraló? Hívd fel a hirdetőt most, és tudj meg mindent erről az eladó nyaralóról! Ha gondolod nézelődj tovább az eladó Horvátországi nyaraló oldal hirdetései között. Ennek az eladó nyaralónak az ára 3200000 EUR és mivel az alapterülete 663 négyzetméter, ezért az átlagos négyzetméterára 4827 EUR/m2.
Az horvátországi ingatlanok menüpontban további hirdetések között is böngészhetsz. Ha van kedved, akkor böngészhetsz a Stolz Jelena összes hirdetése között.

