- >>
- külföldi ingatlanok
- >>
- Horvátországi ingatlanok
- >>
- eladó nyaraló Horvátország
- >>
Eladó újszerű állapotú nyaraló - Horvátország, Malinska, Malinska-Dubašnica
| | |||
| Kedvencnek jelölöm | Elküldöm emailben | Megosztás | Szavazás |
| Kedvezményes lakáshitel ajánlatok | ||
| Árért érdeklődj | ||
Ingatlan adatai
- Eladó vagy kiadó:Eladó
- Település:Malinska, Malinska-Dubašnica
- Kategória:Nyaraló
- Alkategória:Hétvégi ház
- Alapterület:112 m2
- Telekterület:450 m2
- Csere is:Nem
- Hirdető:Cég
- Élő videón megtekinthető:Nem
- Szobaszám:3
- Állapot:Újszerű, kitűnő
- Hány szintes az ingatlan:nincs megadva
- Tetőtér:nincs megadva
- Komfortosság:nincs megadva
- Pince:Nincs
- Parkolási lehetőség:nincs megadva
- Fűtés:nincs megadva
- Téliesített:nincs megadva
- Bútorozottság:nincs megadva
- Fényviszony:nincs megadva
- Tájolás:nincs megadva
- Kilátás:nincs megadva
- Internet:nincs megadva
- Akadálymentesített:nincs megadva
- Energiatanúsítvány:nincs megadva
- Villany:nincs megadva
- Víz:nincs megadva
- Gáz:nincs megadva
- Csatorna:nincs megadva
- Üzenetküldés
- Hívás

Referencia szám: RE-U-31940

Hitel ajánlat
Ingatlan hirdetés leírása
Eladó hétvégi ház Malinska, Malinska-Dubašnica
Új villetta medencével Malinskában, 2 km-re a tengertől!A teljes terület 112 nm. a telek 430 nm.
Ez a gyönyörű villetta két emeleten terül el, egy földszinten és egy felső szinten. Az ingatlanhoz két saját parkolóhely és egy 250 m²-es kert tartozik.
A ház előtti kertben lenyűgöző burkolt terasz található nyári konyhával, napozóterasszal, úszómedencével és pázsittal.
A tér átgondolt kialakítású, a kőhomlokzat pedig kiemeli a villa stílusos megjelenését.
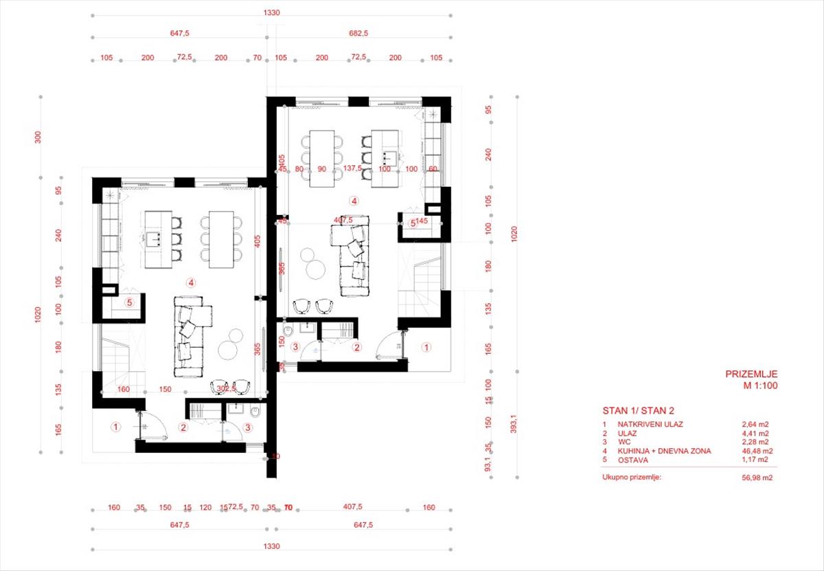
Földszint:
Fedett bejárat: 2, 64 m²
Előszoba: 4, 41 m²
wc: 2, 28 m²
Konyha és nappali terület: 46, 48 m²
Tárhely: 1, 17 m²
Földszint teljes területe: 56, 98 m²
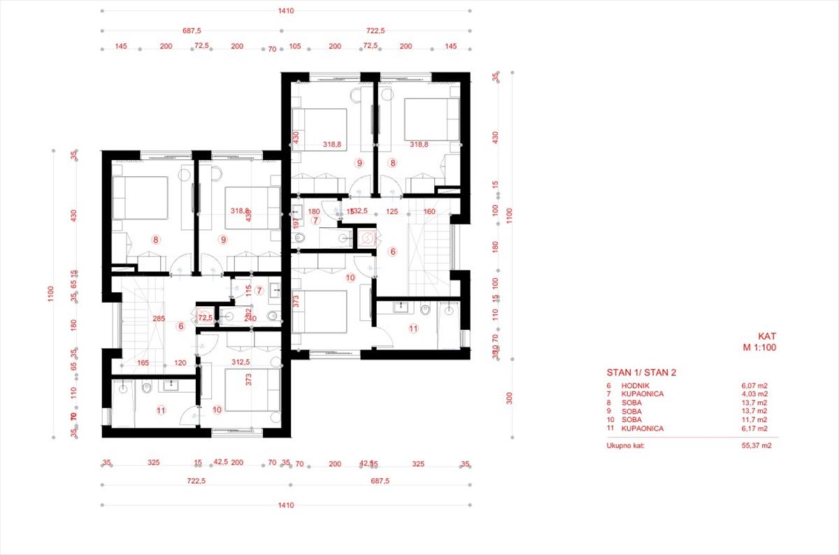
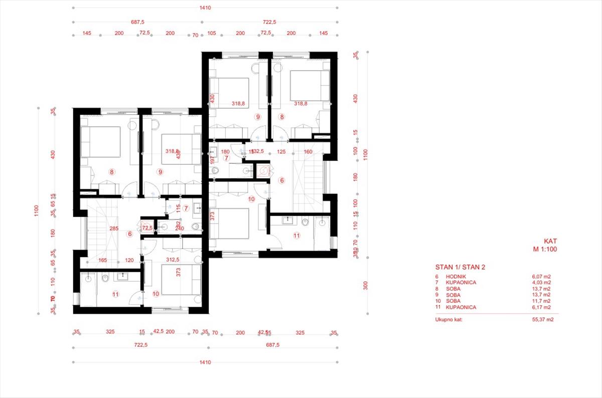
Felső szint:
Előszoba: 6, 07 m²
Fürdőszoba: 4, 03 m²
Hálószoba: 13, 7 m²
Hálószoba: 13, 7 m²
Hálószoba: 11, 7 m²
Fürdőszoba: 6, 17 m²
Felső emelet teljes területe: 55, 37 m²
Ne hagyja ki ezt a kiváló projektet, amely kiváló minőségű építkezéssel és kiváló elhelyezkedéssel rendelkezik, amely tökéletes egy pihentető nyaraláshoz!
Ref: RE-U-31940
Összességében a horvátországi ingatlanvásárlót terhelő többletköltség az ingatlan összköltségének körülbelül 7%-a, amely magában foglalja: - vagyonátruházási illeték (az ingatlan értékének 3%-a); - ügynöki/közvetítői jutalék (3%+áfa jutalék); - ügyvédi díj (kb. 1%); - Közjegyzői díj; - bírósági bejegyzési díj; - hivatalos hiteles fordítási költségek. Ügynökségi/közvetítői szerződés aláírása az ingatlanlátogatás előtt történik. Hitel.hu - Hasonlítsa össze a bankok lakáshitel ajánlatait

