Eladó újszerű állapotú nyaraló - Horvátország, Kastel Stafilic
- INGYENES HIRDETÉS FELADÁS
Ingatlan adatai
- Eladó vagy kiadó:Eladó
- Település:Kastel Stafilic
- Kategória:Nyaraló
- Alkategória:Hétvégi ház
- Alapterület:393 m2
- Telekterület:642 m2
- Csere is:Nem
- Hirdető:Cég
- Élő videón megtekinthető:Nem
- Szobaszám:4
- Állapot:Újszerű, kitűnő
- Hány szintes az ingatlan:nincs megadva
- Tetőtér:nincs megadva
- Komfortosság:nincs megadva
- Pince:Nincs
- Parkolási lehetőség:nincs megadva
- Fűtés:nincs megadva
- Téliesített:nincs megadva
- Bútorozottság:nincs megadva
- Fényviszony:nincs megadva
- Tájolás:nincs megadva
- Kilátás:nincs megadva
- Internet:nincs megadva
- Klíma:nincs megadva
- Akadálymentesített:nincs megadva
- Energiatanúsítvány:nincs megadva
- Villany:nincs megadva
- Víz:nincs megadva
- Gáz:nincs megadva
- Csatorna:nincs megadva
- Kapcsolatfelvétel

Stolz Jelena
+385-(91)-357-30-71
Mondd meg a hirdetőnek, hogy a megveszLAK-on találtad a hirdetést.
Referencia szám: RE-LB11153
Hitel ajánlatok
Ingatlan hirdetés leírása
Eladó hétvégi ház Split
Szupermodern villa egy csodálatos fejlett építészettel, amely megdöbbent!
Le Corbusier imádná ezt a villát!
A villa a Split melletti Kaštel Štafilićben épül, egy zsákutca végén, mezőkkel és nyugtató természettel körülvéve, mindössze 400 m-re a városközponttól, a tengertől és Kastela gyönyörű strandjaitól.
Bruttó házterület: 214 m2
Nettó házterület: 176 m2 (zárt) + 217 m2 terasz
A villa összterülete: 393 m2
A telek 642 nm .
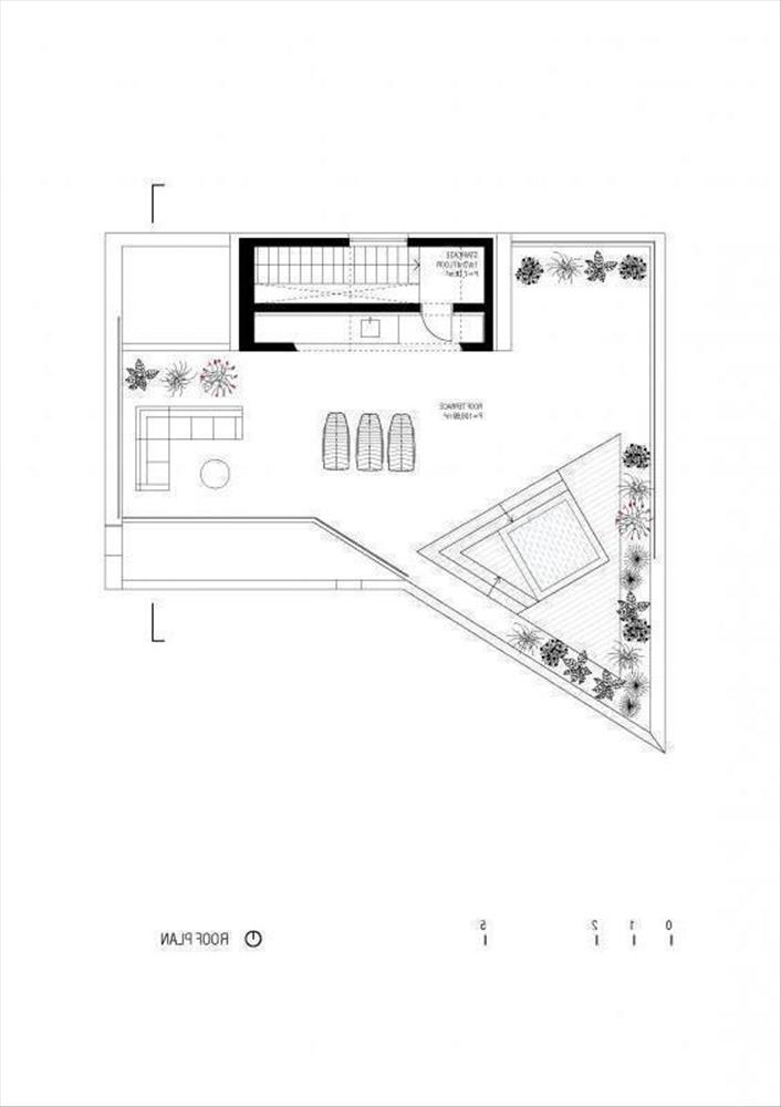
A ház három szintből áll.
Földszint: előszoba, öltöző, fürdőszoba, nappali konyhával és étkezővel, melyet üvegfal köt össze tágas fedett terasszal és medencével.
1. emelet: előszoba, hálószoba öltözővel és fürdőszobával, három hálószoba, három fürdőszoba, loggia.
Lehetőség van arra is, hogy három fürdőszoba legyen az emeleten, és egy szoba nagyobb legyen.
Felső szint - a villa legjobb része egy tetőterasz jakuzzival, nyugágyakkal és csodálatos kilátással. Tökéletes hely a kikapcsolódásra és eltölteni egy estét a naplementében.
A ház jelenleg betonozott, ablakos. Részt vehet a belsőépítészeti részletek, stílus, szín, bútor kiválasztásában.
Egy teljesen kész és bútorozott ház ára 890 000 € lenne. 2022-Ben készülhet el.
2021-Ben a National Geographic Traveller (Egyesült Királyság) megszervezte a „Reader Awards” díjat, és Horvátországot a top három ország közé sorolta a „legjobb közelebbi úti cél” kategóriában. Ezt a díjat zsinórban hatodszor vehették át Olaszországgal és Görögországgal megosztva.
Ez azt jelenti, hogy a brit utazókat, a horvátországi apartmanok, házak és villák potenciális vásárlóit a jövőbeli utazások ötlete inspirálja a poszt-covid valóságban.
A horvát turizmus a világjárványok ellenére 2021-ben nagyszerű eredményeket mutatott fel, 2022-2023-ban pedig még jobbak a kilátások.
Horvátországot a jövőben számos alkalommal díjazzák, mint a legbarátságosabb, legnyugodtabb és legtisztább nyaralási és állandó lakhatási célpontot az év 365 napján. Ref: RE-LB11153
Összességében a horvátországi ingatlanvásárlót terhelő többletköltség az ingatlan összköltségének körülbelül 7%-a, amely magában foglalja: - vagyonátruházási illeték (az ingatlan értékének 3%-a); - ügynöki/közvetítői jutalék (3%+áfa jutalék); - ügyvédi díj (kb. 1%); - Közjegyzői díj; - bírósági bejegyzési díj; - hivatalos hiteles fordítási költségek. Ügynökségi/közvetítői szerződés aláírása az ingatlanlátogatás előtt történik. Hitel.hu - Hasonlítsa össze a bankok lakáshitel ajánlatait
Tetszett ez az eladó Horvátországi újszerű állapotú 4 szobás nyaraló? Hívd fel a hirdetőt most, és tudj meg mindent erről az eladó nyaralóról! Ha gondolod nézelődj tovább az eladó Horvátországi nyaraló oldal hirdetései között. Ennek az eladó nyaralónak az ára 1090000 EUR és mivel az alapterülete 393 négyzetméter, ezért az átlagos négyzetméterára 2774 EUR/m2.
Az horvátországi ingatlanok menüpontban további hirdetések között is böngészhetsz. Ha van kedved, akkor böngészhetsz a Stolz Jelena összes hirdetése között.

