Eladó telek - Spanyolország, Javea
- INGYENES HIRDETÉS FELADÁS
Ingatlan adatai
- Eladó vagy kiadó:Eladó
- Település:Javea
- Kategória:Telek
- Alkategória:Lakóövezeti
- Alapterület:nincs megadva
- Telekterület:1000 m2
- Csere is:Nem
- Hirdető:Cég
- Élő videón megtekinthető:Nem
- Villany:nincs megadva
- Víz:nincs megadva
- Gáz:nincs megadva
- Csatorna:nincs megadva
- Kapcsolatfelvétel

Dorina
+36 30 684 7087
Mondd meg a hirdetőnek, hogy a megveszLAK-on találtad a hirdetést.
Referencia szám: NVTJC0107
Hitel ajánlatok
Ingatlan hirdetés leírása
Eladó telek Javea, Eladó telek - Spanyolország, Javea
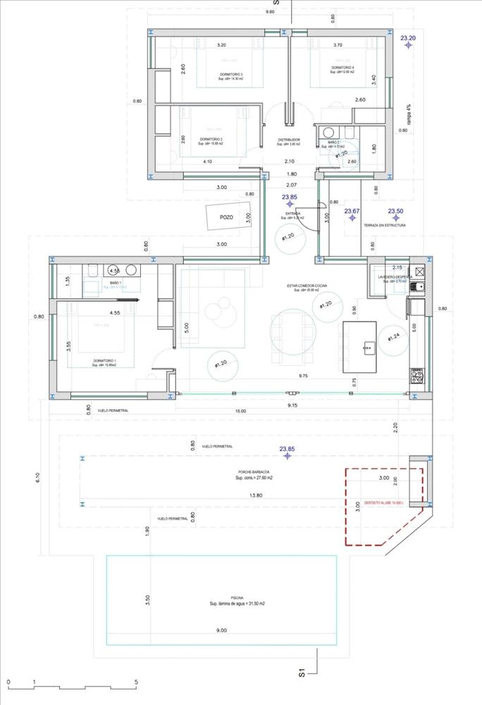
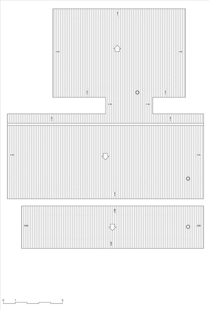
Ez egy 1000 m ² -es városi telken található a békés és délutáni területen El Tosalet Javea. a telek saját kút, amely forrásvizet, amely nagy előnye a használat és a karbantartás a föld.
Jelenleg a telek eladó egy építési projekt; vannak a tervek, amelyek egy javaslatot a lehetséges tervezés. E javaslatok célja, hogy segítsék a földterület különböző lehetőségeinek és lehetőségeinek áttekintését. Fontos kiemelni, hogy a tulajdonos már benyújtott egy projektet a városházára, amit jóváhagytak, így az építkezés azonnal megkezdődhet! Az urbanizációs költségeket is kifizették.
Ez a telek egy kiváló lehetőség azok számára, akik szeretnének befektetni egy darab földbe, egy kiváltságos területen, azzal a rugalmassággal, hogy tervezzék otthonukat vagy projektjüket a specifikációik szerint.
Ne habozzon kapcsolatba lépni velünk, hogy megszervezze a látogatást. Hitel.hu - Hasonlítsa össze a bankok lakáshitel ajánlatait
Tetszett ez az eladó Spanyolországi telek? Hívd fel a hirdetőt most, és tudj meg mindent erről az eladó telekről! Ha gondolod nézelődj tovább az eladó Spanyolországi telek oldal hirdetései között.
Az spanyol ingatlanok menüpontban további hirdetések között is böngészhetsz. Ha van kedved, akkor böngészhetsz a Dorina összes hirdetése között, vagy akár a/az Luxy Living összes hirdetése között is.

