Eladó telek - Spanyolország, Mijas Golf
- INGYENES HIRDETÉS FELADÁS
Ingatlan adatai
- Eladó vagy kiadó:Eladó
- Település:Mijas Golf
- Kategória:Telek
- Alkategória:Lakóövezeti
- Alapterület:nincs megadva
- Telekterület:711 m2
- Csere is:Nem
- Hirdető:Cég
- Élő videón megtekinthető:Nem
- Villany:nincs megadva
- Víz:nincs megadva
- Gáz:nincs megadva
- Csatorna:nincs megadva
- Kapcsolatfelvétel

Dorina
+36 30 684 7087
Mondd meg a hirdetőnek, hogy a megveszLAK-on találtad a hirdetést.
Referencia szám: APM00358
Hitel ajánlatok
Ingatlan hirdetés leírása
Eladó telek Mijas Golf
Építs! a building license és az icio paid telepítése Loma del Flamencóban (Mijas Golf).
Csodálatos telek az exkluzív urbanizáció Loma del Flamenco (Mijas Golf), mindössze 5 percre El Esparragal. Az urbanizáció kész utakat, körutakat és szolgáltatásokat kínál.
A fő versenytárs Előny: Felejtsd el az engedélyek frusztrációját és bizonytalanságát. Ezt a földterületet a már megadott települési építési engedéllyel (ICIO-adó - 5000 eur) és egy jóváhagyott alapprojekttel értékesítik.
A vevő azonnal elkezdhet építkezni!
Jóváhagyott projektrészletek (Single- Family Home):
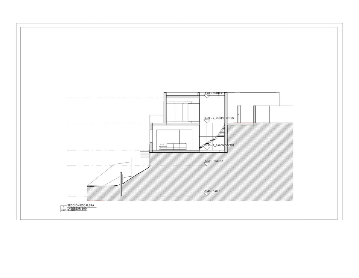
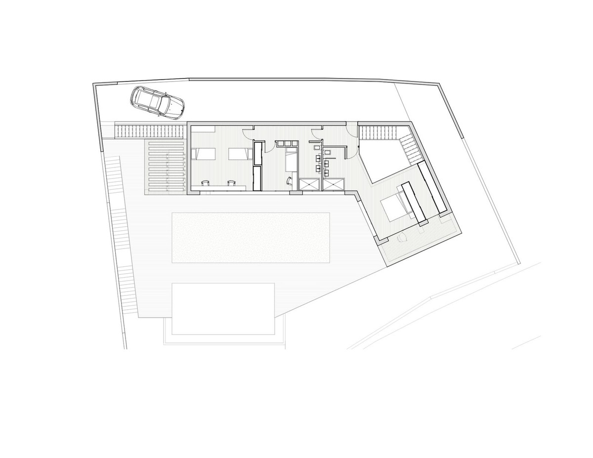
A tervezett lakás modern és funkcionális, két szinten elrendezve egy oldalsó terasz, amely megvilágítás és szellőztetés.
Verhetetlen Megtekintések: a ház és a jóváhagyott medence célja, hogy kihasználja a hihetetlen nyílt kilátás a impozáns Mijas-hegység (Sierras de Mijas) és látványos kilátás a tengerre a felső emeletről.
Elrendezés:
Földszint / Hozzáférési szint (nappali terület): Nappali, konyha / étkező, wc, belső terasz és iroda.
Felső szint (Éjszakai terület): Master hálószoba ensuite fürdőszobával és öltözővel, valamint két másodlagos hálószoba és egy fürdőszoba.
További előnyök Tartalmazza:
Jóváhagyta a projekt swimming pool (kész a végrehajtásra).
Jóváhagyott Basic Project (lehetőség az építész).
Up- to-date az összes városi díjjal (ingyenes adósság igazolása).
Ideális: magánszemélyek, akik bürokratikus várakozás nélkül kívánják felépíteni otthonukat, vagy kis fejlesztők, akiknek sürgősen el kell kezdeniük az építkezést.
A befektető / vevő rendelkezésére álló dokumentáció: Egyszerű megjegyzés (Nota Simple), Értékelési jelentés, tervek és licenc tanúsítvány.
Itt az ideje az építkezésnek, nem várni! Hitel.hu - Hasonlítsa össze a bankok lakáshitel ajánlatait
Tetszett ez az eladó Spanyolországi telek? Hívd fel a hirdetőt most, és tudj meg mindent erről az eladó telekről! Ha gondolod nézelődj tovább az eladó Spanyolországi telek oldal hirdetései között.
Az spanyol ingatlanok menüpontban további hirdetések között is böngészhetsz. Ha van kedved, akkor böngészhetsz a Dorina összes hirdetése között, vagy akár a/az Luxy Living összes hirdetése között is.

