Eladó telek - Spanyolország, Coín
- INGYENES HIRDETÉS FELADÁS
Ingatlan adatai
- Eladó vagy kiadó:Eladó
- Település:Coín
- Kategória:Telek
- Alkategória:Lakóövezeti
- Alapterület:nincs megadva
- Telekterület:210 m2
- Csere is:Nem
- Hirdető:Cég
- Élő videón megtekinthető:Nem
- Villany:nincs megadva
- Víz:nincs megadva
- Gáz:nincs megadva
- Csatorna:nincs megadva
- Kapcsolatfelvétel

Dorina
+36 30 684 7087
Mondd meg a hirdetőnek, hogy a megveszLAK-on találtad a hirdetést.
Referencia szám: PLCOIPRO
Hitel ajánlatok
Ingatlan hirdetés leírása
Eladó telek Coín, Eladó telek - Spanyolország, Coín
Központi PROJEKT
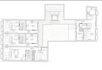
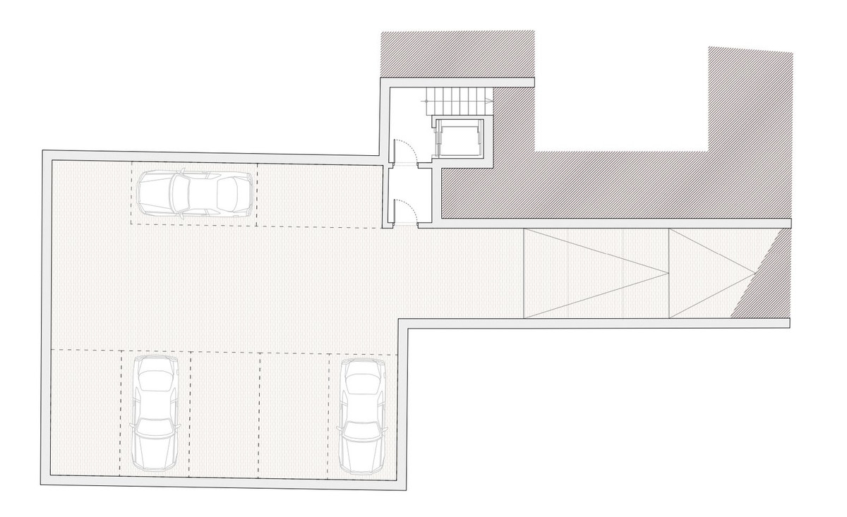
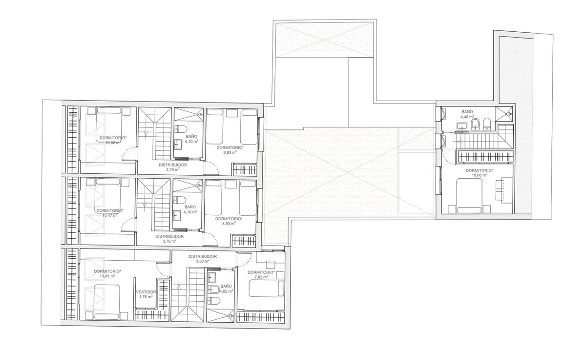
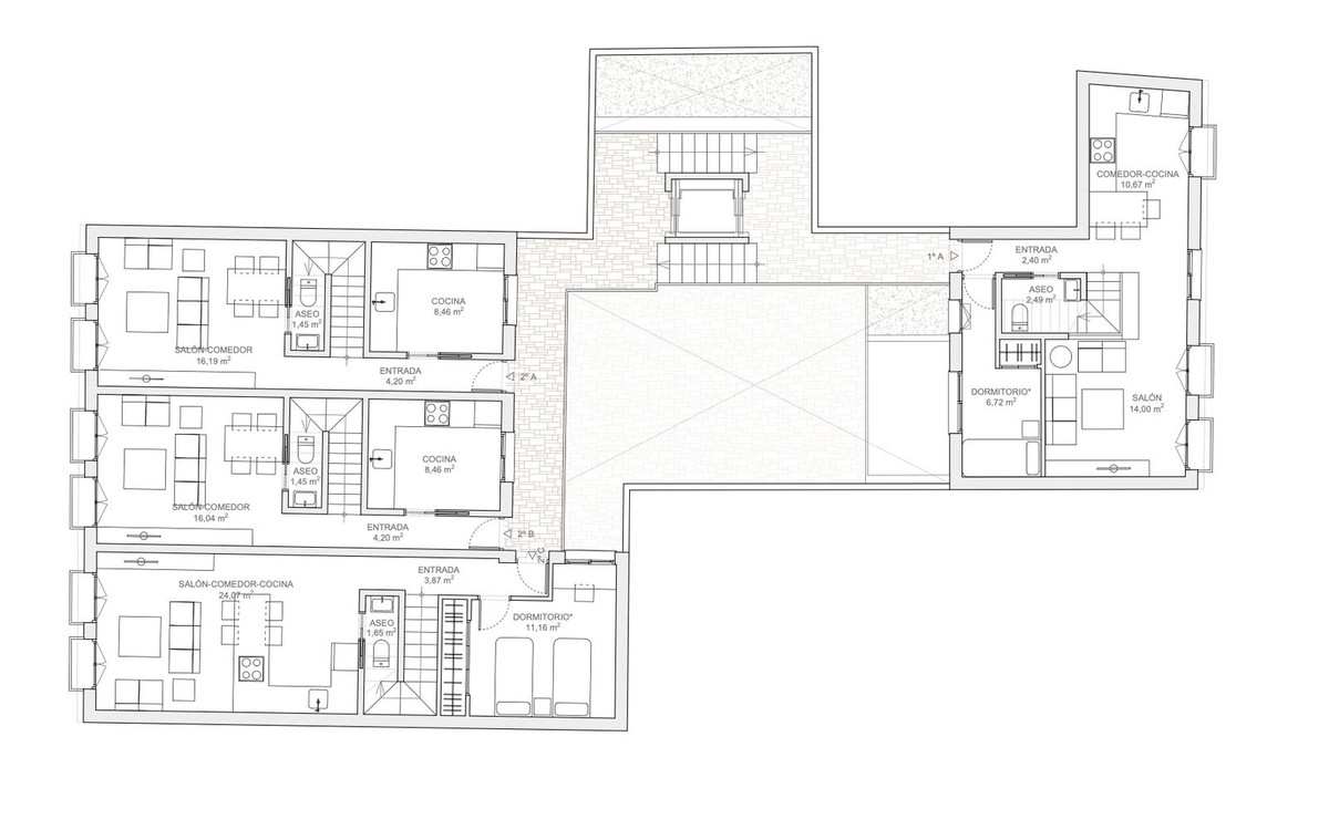
Eladó telek 7 ház építéséhez, terjesztési tervek, hogy képes legyen építeni a lehető leghamarabb.
A parkolás egy nagyon jó területen, központi, közel a városháza, terek.
A projekt által bemutatott építész elosztott (Mi lehet szállítani projekt, így van ötlete, és végre):
Három egyszobás apartman garázssal, vadonatúj.
Három kétszobás duplex apartman.
Egy három szobás duplex lakás. Hitel.hu - Hasonlítsa össze a bankok lakáshitel ajánlatait
Tetszett ez az eladó Spanyolországi telek? Hívd fel a hirdetőt most, és tudj meg mindent erről az eladó telekről! Ha gondolod nézelődj tovább az eladó Spanyolországi telek oldal hirdetései között.
Az spanyol ingatlanok menüpontban további hirdetések között is böngészhetsz. Ha van kedved, akkor böngészhetsz a Dorina összes hirdetése között, vagy akár a/az Luxy Living összes hirdetése között is.

