Eladó telek - Spanyolország, Benahavís
- INGYENES HIRDETÉS FELADÁS
Ingatlan adatai
- Eladó vagy kiadó:Eladó
- Település:Benahavís
- Kategória:Telek
- Alkategória:Lakóövezeti
- Alapterület:nincs megadva
- Telekterület:2870 m2
- Csere is:Nem
- Hirdető:Cég
- Élő videón megtekinthető:Nem
- Villany:nincs megadva
- Víz:nincs megadva
- Gáz:nincs megadva
- Csatorna:nincs megadva
- Kapcsolatfelvétel

Dorina
+36 30 684 7087
Mondd meg a hirdetőnek, hogy a megveszLAK-on találtad a hirdetést.
Referencia szám: 6154ALA/4316
Hitel ajánlatok
Ingatlan hirdetés leírása
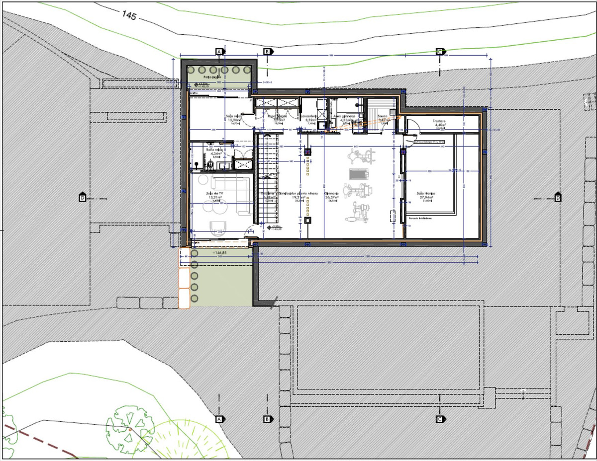
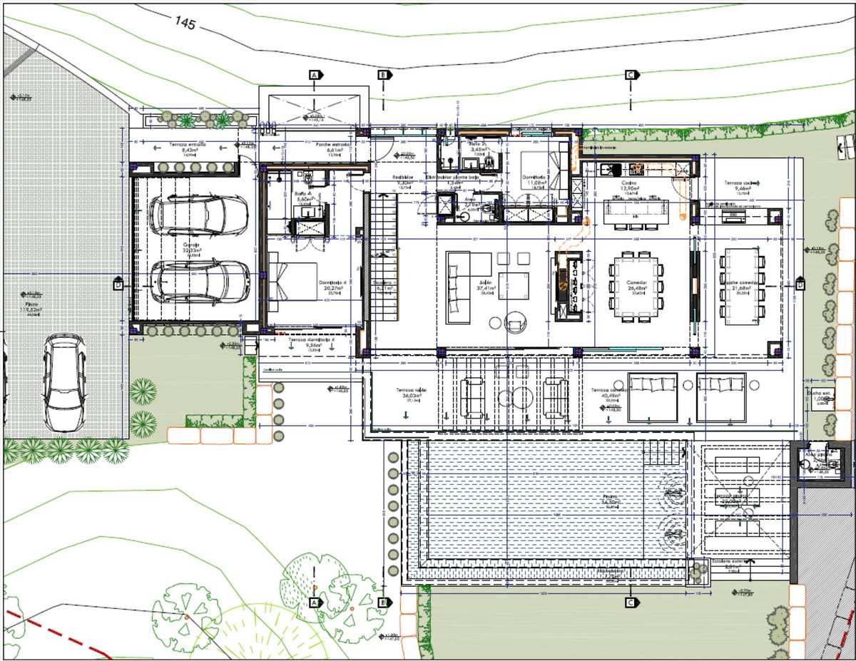
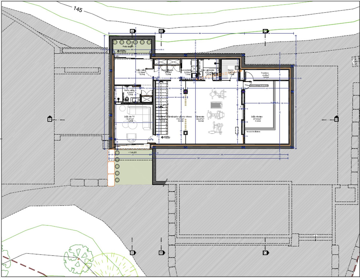
Eladó telek Benahavís
Az egyik Benahavís & apos; legexkluzívabb természetes enklávé szívében az A16-os telek Monte Mayor-ban kivételes lehetőséget kínál arra, hogy létrehozzon egy teljesen burkolt villát egy olyan környezetben, ahol a magánélet, a nyugalom és a táj kerül a középpontba.
Kiváltságos helyzete nyitott kilátás nyílik a völgyre, a hegyekre és a gyönyörű tóra, amelyet a mediterrán erdő keretez, és amely valódi visszavonulást biztosít anélkül, hogy feláldozná a mindennapi kényelmet.
A teljes telek mérete 2, 870 m2 és maximális építhetősége 366 m2, ez a tökéletes üres vászon, hogy tervezze otthon integrált természet, bőkezű teraszok, kertek és szabadtéri létrehozott élvezni a déli éghajlat egész évben.
Monte Mayor egy zárt közösség 24 órás biztonsággal és egy nagyra becsült lakossági koncepció, csak korlátozott számú otthonok a nagy telkek, ami nagyobb magánélet, béke és kifinomult esztétika nélkül túlzsúfoltság.
Csak egy rövid autóútra Benahavís, Marbella és a part, ez a telek ideális azok számára, akik keresik a természet, kizárólagosság és a szabadság, hogy hozzon létre egy igazán egyedi ingatlan.
Ne hagyd ki a lehetőséget, hogy ezt a látomást valósággá változtasd. Isten hozott a jövő otthonában Montemayorban!
A vevő által fizetendő becsült költségek:
Az átruházott adókról szóló 5 / 2021 sz. Törvény értelmében a vételre transzferadó (itp) vonatkozik, amelynek felső határa 7%. Az adóalap a tulajdonjogi okiratban és a kataszteri referenciaértékben meghatározott magasabb ár (a transzferadóról és a bélyegilletékről szóló törvény felülvizsgált szövegének 10. Cikke - trlitajd). a kedvezményes adókulcsok a vevő és a személyes körülmények függvényében alkalmazhatók. a közokirat közjegyző előtti, valamint a tartományi nyilvántartásban való nyilvántartásba vétel költségeit az 1426 / 1989. Sz. Királyi rendelet, illetve az 1427 / 1989. Sz. Királyi rendelet szabályozza. Általános becslésként a közjegyzői díjak 500 és 2000 eur között, a földhasználati díjak pedig 250 és 1500 eur között mozoghatnak. Adminisztratív kezelési díj. . . Hitel.hu - Hasonlítsa össze a bankok lakáshitel ajánlatait
Tetszett ez az eladó Spanyolországi telek? Hívd fel a hirdetőt most, és tudj meg mindent erről az eladó telekről! Ha gondolod nézelődj tovább az eladó Spanyolországi telek oldal hirdetései között.
Az spanyol ingatlanok menüpontban további hirdetések között is böngészhetsz. Ha van kedved, akkor böngészhetsz a Dorina összes hirdetése között, vagy akár a/az Luxy Living összes hirdetése között is.

