Eladó telek - Spanyolország, Selwo
- INGYENES HIRDETÉS FELADÁS
Ingatlan adatai
- Eladó vagy kiadó:Eladó
- Település:Selwo
- Kategória:Telek
- Alkategória:Lakóövezeti
- Alapterület:nincs megadva
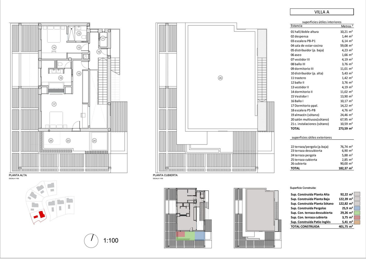
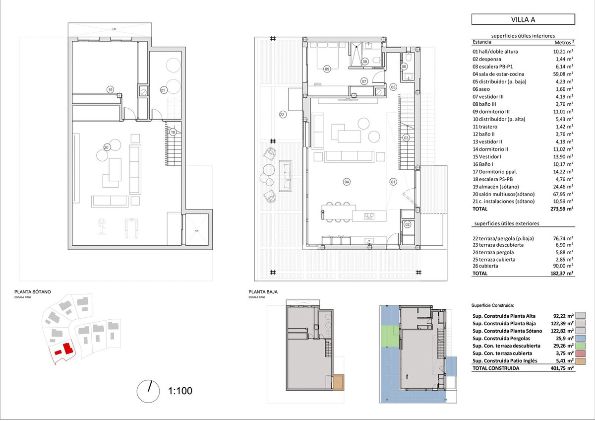
- Telekterület:800 m2
- Csere is:Nem
- Hirdető:Cég
- Élő videón megtekinthető:Nem
- Villany:nincs megadva
- Víz:nincs megadva
- Gáz:nincs megadva
- Csatorna:nincs megadva
- Kapcsolatfelvétel

Dorina
+36 30 684 7087
Mondd meg a hirdetőnek, hogy a megveszLAK-on találtad a hirdetést.
Hitel ajánlatok
Ingatlan hirdetés leírása
Eladó telek Selwo, Eladó telek - Spanyolország, Selwo
Szuper lehetőség befektetni az új otthonodba!
Öt telek eladó a szuper gyors fejlődő területen a nagyon gyors a & quot; New Golden Mile & quot; - Selwo, ahol a legrangosabb magániskola, kávézók, új SPA-központ tenisz és evezőpálya és a legjobb strandok találhatók.
A telek mérete 800-857 méter, a megengedett építési százalék 25% plusz pince.
A projekt és építési engedély tartalmazza az eladási ár, de nem kötelező végrehajtani a projektet, akkor változtatni a projekt, és választotta a design az Ön választása.
Hívjon minket további részletekért. Hitel.hu - Hasonlítsa össze a bankok lakáshitel ajánlatait
Tetszett ez az eladó Spanyolországi telek? Hívd fel a hirdetőt most, és tudj meg mindent erről az eladó telekről! Ha gondolod nézelődj tovább az eladó Spanyolországi telek oldal hirdetései között.
Az spanyol ingatlanok menüpontban további hirdetések között is böngészhetsz. Ha van kedved, akkor böngészhetsz a Dorina összes hirdetése között, vagy akár a/az Luxy Living összes hirdetése között is.

