Eladó telek - Spanyolország, Hacienda Las Chapas
- INGYENES HIRDETÉS FELADÁS
Ingatlan adatai
- Eladó vagy kiadó:Eladó
- Település:Hacienda Las Chapas
- Kategória:Telek
- Alkategória:Lakóövezeti
- Alapterület:nincs megadva
- Telekterület:4600 m2
- Csere is:Nem
- Hirdető:Cég
- Élő videón megtekinthető:Nem
- Villany:nincs megadva
- Víz:nincs megadva
- Gáz:nincs megadva
- Csatorna:nincs megadva
- Kapcsolatfelvétel

Dorina
+36 30 684 7087
Mondd meg a hirdetőnek, hogy a megveszLAK-on találtad a hirdetést.
Referencia szám: N2148E
Hitel ajánlatok
Ingatlan hirdetés leírása
Eladó telek Hacienda Las Chapas
Az exkluzív Las Chapas területen egyedülálló lehetőség kínálkozik: 4, 500 m ² fölötti földterület, befejezett projekttel.
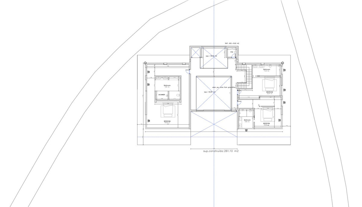
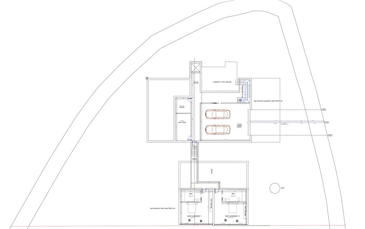
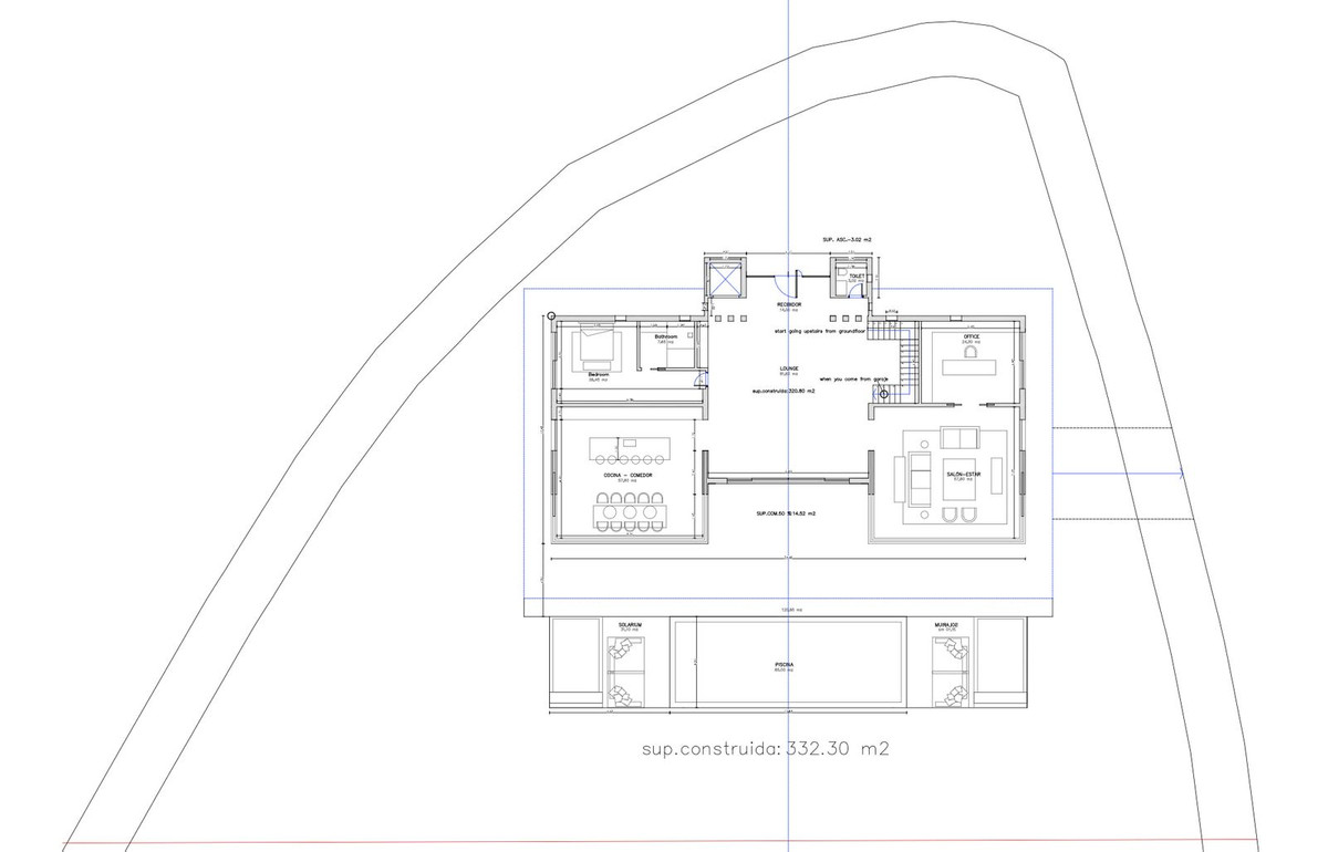
A projekt magában foglalja a körülbelül 800 m ² -es, háromemeletes, elegáns pince egy tágas garázs. Minden helyet kiváló minőségű anyagokkal és kortárs építészeti stílussal terveztek, amely zökkenőmentesen ötvözi a fényt, a tervezést és a természetet.
Az építési engedély iránti kérelmet már benyújtották, és várhatóan néhány hónapon belül jóváhagyják.
Van egy lehetőség, hogy megvásárolja a villa offplan, amely lehetővé teszi a testreszabását befejezések (ár kérésre), vagy csak vásárolni a földet a befejezett projekt már benyújtott - ideális lehetőség azok számára, akik szeretnének beruházni vagy fejleszteni saját koncepció egy jóváhagyott építészeti keretben.
Egy exkluzív ingatlan az egyik Marbella & apos; s leginkább délutáni helyszínek. Hitel.hu - Hasonlítsa össze a bankok lakáshitel ajánlatait
Tetszett ez az eladó Spanyolországi telek? Hívd fel a hirdetőt most, és tudj meg mindent erről az eladó telekről! Ha gondolod nézelődj tovább az eladó Spanyolországi telek oldal hirdetései között.
Az spanyol ingatlanok menüpontban további hirdetések között is böngészhetsz. Ha van kedved, akkor böngészhetsz a Dorina összes hirdetése között, vagy akár a/az Luxy Living összes hirdetése között is.

