Eladó újszerű állapotú lakás - Horvátország, Rijeka
- INGYENES HIRDETÉS FELADÁS
Ingatlan adatai
- Eladó vagy kiadó:Eladó
- Település:Rijeka
- Kategória:Lakás
- Alkategória:Tégla
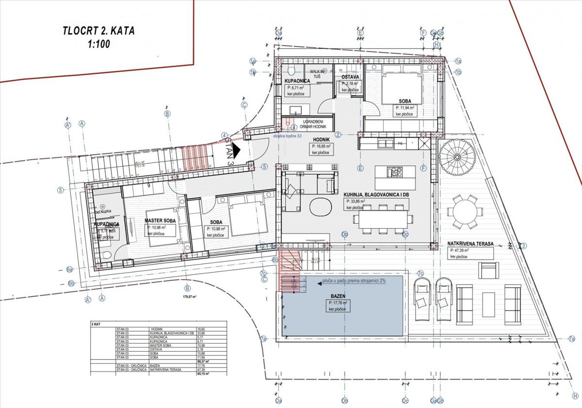
- Alapterület:99 m2
- Csere is:Nem
- Hirdető:Cég
- Élő videón megtekinthető:Nem
- Szobaszám:3
- Állapot:Újszerű, kitűnő
- Hány szintes az ingatlan:nincs megadva
- Komfortosság:nincs megadva
- Hányadik emeleti:nincs megadva
- Erkély:nincs megadva
- Lift:nincs megadva
- Parkolási lehetőség:nincs megadva
- Fűtés:nincs megadva
- Bútorozottság:nincs megadva
- Fényviszony:nincs megadva
- Tájolás:nincs megadva
- Kilátás:nincs megadva
- Internet:nincs megadva
- Klíma:nincs megadva
- Akadálymentesített:nincs megadva
- Energiatanúsítvány:nincs megadva
- Villany:nincs megadva
- Víz:nincs megadva
- Gáz:nincs megadva
- Csatorna:nincs megadva
- Kapcsolatfelvétel

Stolz Jelena
+385-(91)-357-30-71
Mondd meg a hirdetőnek, hogy a megveszLAK-on találtad a hirdetést.
Referencia szám: RE-U-35889
Hitel ajánlatok
Ingatlan hirdetés leírása
Eladó téglalakás Rijeka
Luxus penthouse lenyűgöző kilátással a Kvarner-öbölre!
Exkluzív új fejlesztés! Ez a kivételes villa három luxus lakóegységgel rendelkezik, és lélegzetelállító kilátást nyújt a Kvarner-öbölre és a környező szigetekre. a Rijeka békés Kozala negyedében található szálloda a nyugodt zöldövezetet ötvözi az összes alapvető kényelmi közelséggel, így páratlan életélményt biztosít.
Kiemelt ingatlanok:
Minden apartmannak saját emelete van, maximális magánéletet biztosítva.
Közel 100 m²-es belső lakótér, 200 m²-es terasszal és parkosított területtel kiegészítve, beleértve a saját fűtött medencéket.
A legmodernebb technológia a kényelem és az energiahatékonyság érdekében, beleértve:
Kiváló minőségű homlokzati hőszigetelés.
Daikin a+++ padlófűtés és -hűtés rendszer hőszivattyúval és integrált vízmelegítéssel.
Az egész lakásban padlófűtés, minden szobában fan-coil egység.
Kilenc parkolóhely, három elektromos jármű töltőállomással felszerelt.
Penthouse jellemzői:
Ennek a tekintélyes villának a koronaékköve a legfelső emeleti penthouse, amely luxust és funkcionalitást egyaránt kínál:
Nettó lakóterület: 98, 37 m²
Három tágas hálószoba, köztük egy mesterlakosztály saját fürdőszobával.
Két modern fürdőszoba.
Nyitott nappali konyhával és étkezővel.
48 M²-es fedett terasz panorámás kilátással a tengerre.
Fűtött, 18 m²-es ellenáramú medence, elektrolizáló rendszerrel és prémium burkolattal.
80 M²-es tetőterasz, a tökéletes hely a pihenéshez és szórakozáshoz, páratlan kilátással.
Három saját parkolóhely, az egyik elektromos töltővel felszerelt.
Kiváló elhelyezkedés és életmód:
A békés lakónegyedben található penthouse nyugalmat biztosít, miközben néhány percre van iskoláktól, éttermektől, üzletektől és sok mástól. a tengerre és a szigetekre nyíló panorámás kilátás tovább fokozza vonzerejét. Befejezési idővonal:
Az építkezés várhatóan 2025 közepére fejeződik be.
Testreszabható belső kialakítás:
A penthouse bútorozatlanul kerül értékesítésre, így a vásárlóknak lehetősége nyílik arra, hogy saját igényeik szerint alakítsák ki és alakítsák ki lakóterüket.
Ne hagyja ki ezt a ritka lehetőséget, hogy egy luxus penthouse tulajdonosa legyen Rijeka egyik legkívánatosabb helyén.
Lépjen kapcsolatba velünk még ma, és biztosítsa álmai otthonát! Ref: RE-U-35889
Összességében a horvátországi ingatlanvásárlót terhelő többletköltség az ingatlan összköltségének körülbelül 7%-a, amely magában foglalja: - vagyonátruházási illeték (az ingatlan értékének 3%-a); - ügynöki/közvetítői jutalék (3%+áfa jutalék); - ügyvédi díj (kb. 1%); - Közjegyzői díj; - bírósági bejegyzési díj; - hivatalos hiteles fordítási költségek. Ügynökségi/közvetítői szerződés aláírása az ingatlanlátogatás előtt történik.
Ingatlanelőnyök: Tetőterasz, Úszómedence, Padlófűtés, Urbanizált, Modern Hitel.hu - Hasonlítsa össze a bankok lakáshitel ajánlatait
Tetszett ez az eladó Horvátországi újszerű állapotú 3 szobás tégla lakás? Hívd fel a hirdetőt most, és tudj meg mindent erről az eladó tégla lakásról! Ha gondolod nézelődj tovább az eladó Horvátországi lakás oldal hirdetései között. Ennek az eladó lakásnak az ára 675000 EUR és mivel az alapterülete 99 négyzetméter, ezért az átlagos négyzetméterára 6818 EUR/m2.
Az horvátországi ingatlanok menüpontban további hirdetések között is böngészhetsz. Ha van kedved, akkor böngészhetsz a Stolz Jelena összes hirdetése között.

